595181 4th Line Blue Mountains, Ontario N0H 2E0
$2,200,000
Just over 100 acres only 15 minutes from Collingwood, offering a quiet rural setting with plenty of space to spread out. The property includes approximately 60 to 65 workable acres, 5 acres of pasture, and 25 acres of hardwood bush, creating a mix of open land, privacy, and natural beauty. The soils are a combination of Listowel Silt Loam and Osprey Loam, both known for good drainage, strong nutrient holding capacity, and suitability for crops. The home is a solid red brick two-storey built around 1900 with about 1,600 sq ft of living space. It features five bedrooms, a 3 piece main floor bathroom, and a 3 piece ensuite on the second floor, along with original hardwood floors, older windows, a metal roof, a covered front porch, and a back mudroom. The layout works well for families or anyone looking for a country home with character. The stone foundation with poured foundation addition is in good condition and the basement includes the laundry area, a cold room, and the forced air oil furnace with convenient exterior access. Outbuildings include a 20' x 20' garage with a concrete floor, a 30' x 60' drive shed with two large doors and a dirt floor, and a traditional bank barn with water. This is an excellent farm with a practical and workable setup, and it also offers the space, privacy, and charm that appeal to residential buyers looking for a rural lifestyle with room to grow. (id:50886)
Property Details
| MLS® Number | X12594960 |
| Property Type | Single Family |
| Community Name | Blue Mountains |
| Features | Sump Pump |
| Parking Space Total | 5 |
| Structure | Barn, Barn, Workshop |
Building
| Bathroom Total | 2 |
| Bedrooms Above Ground | 5 |
| Bedrooms Total | 5 |
| Appliances | Water Heater |
| Basement Development | Unfinished |
| Basement Type | Full (unfinished) |
| Construction Style Attachment | Detached |
| Cooling Type | None |
| Exterior Finish | Brick |
| Foundation Type | Stone |
| Heating Fuel | Oil |
| Heating Type | Forced Air |
| Stories Total | 2 |
| Size Interior | 1,500 - 2,000 Ft2 |
| Type | House |
Parking
| Detached Garage | |
| Garage |
Land
| Access Type | Year-round Access |
| Acreage | Yes |
| Sewer | Septic System |
| Size Depth | 4486 Ft ,3 In |
| Size Frontage | 1008 Ft ,7 In |
| Size Irregular | 1008.6 X 4486.3 Ft |
| Size Total Text | 1008.6 X 4486.3 Ft|100+ Acres |
| Zoning Description | Nec |
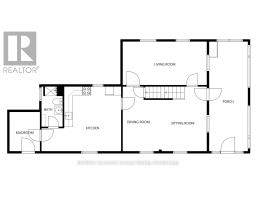
Rooms
| Level | Type | Length | Width | Dimensions |
|---|---|---|---|---|
| Second Level | Primary Bedroom | 4.62 m | 2.95 m | 4.62 m x 2.95 m |
| Second Level | Bedroom 2 | 3.1 m | 2.11 m | 3.1 m x 2.11 m |
| Second Level | Bedroom 3 | 3.33 m | 2.67 m | 3.33 m x 2.67 m |
| Second Level | Bedroom 4 | 2.64 m | 2.57 m | 2.64 m x 2.57 m |
| Second Level | Bedroom 5 | 3.56 m | 3.12 m | 3.56 m x 3.12 m |
| Main Level | Kitchen | 4.55 m | 3.94 m | 4.55 m x 3.94 m |
| Main Level | Dining Room | 5.87 m | 3.63 m | 5.87 m x 3.63 m |
| Main Level | Living Room | 5.82 m | 3.07 m | 5.82 m x 3.07 m |
| Main Level | Mud Room | 2.74 m | 2.13 m | 2.74 m x 2.13 m |
Utilities
| Electricity | Installed |
https://www.realtor.ca/real-estate/29155903/595181-4th-line-blue-mountains-blue-mountains
Contact Us
Contact us for more information
Erin Boynton-Seeley
Broker of Record
www.facebook.com/boyntonteam
www.linkedin.com/pub/erin-boynton-seeley/12/6b1/4a1
www.instagram.com/erinboyntonseeley/
1 Toronto Rd
Flesherton, Ontario N0C 1E0
(519) 924-3513
www.reviseyoursize.ca/





























































