60 Deer Ridge Lane W Bluewater, Ontario N0M 1G0
$995,000
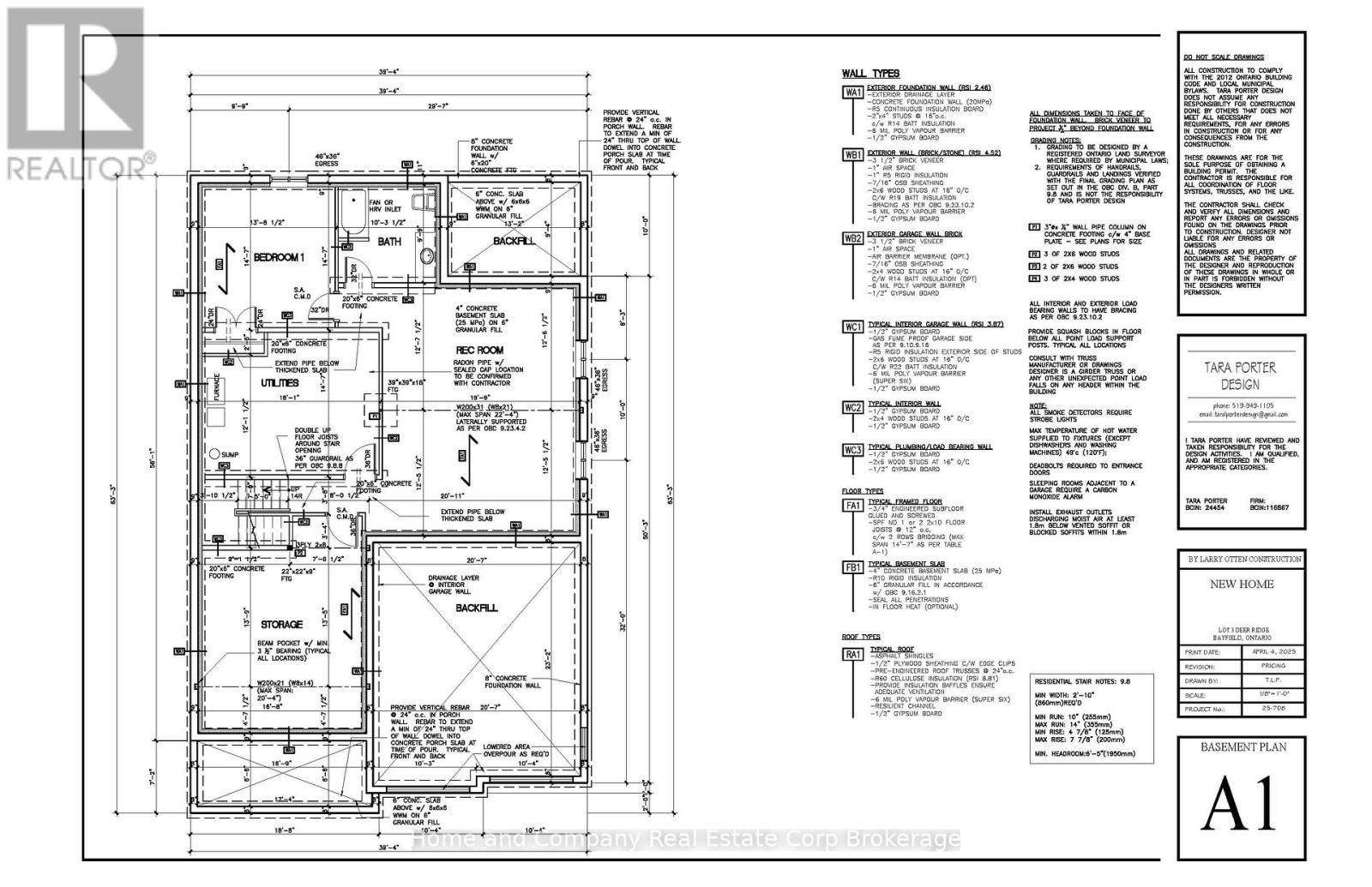
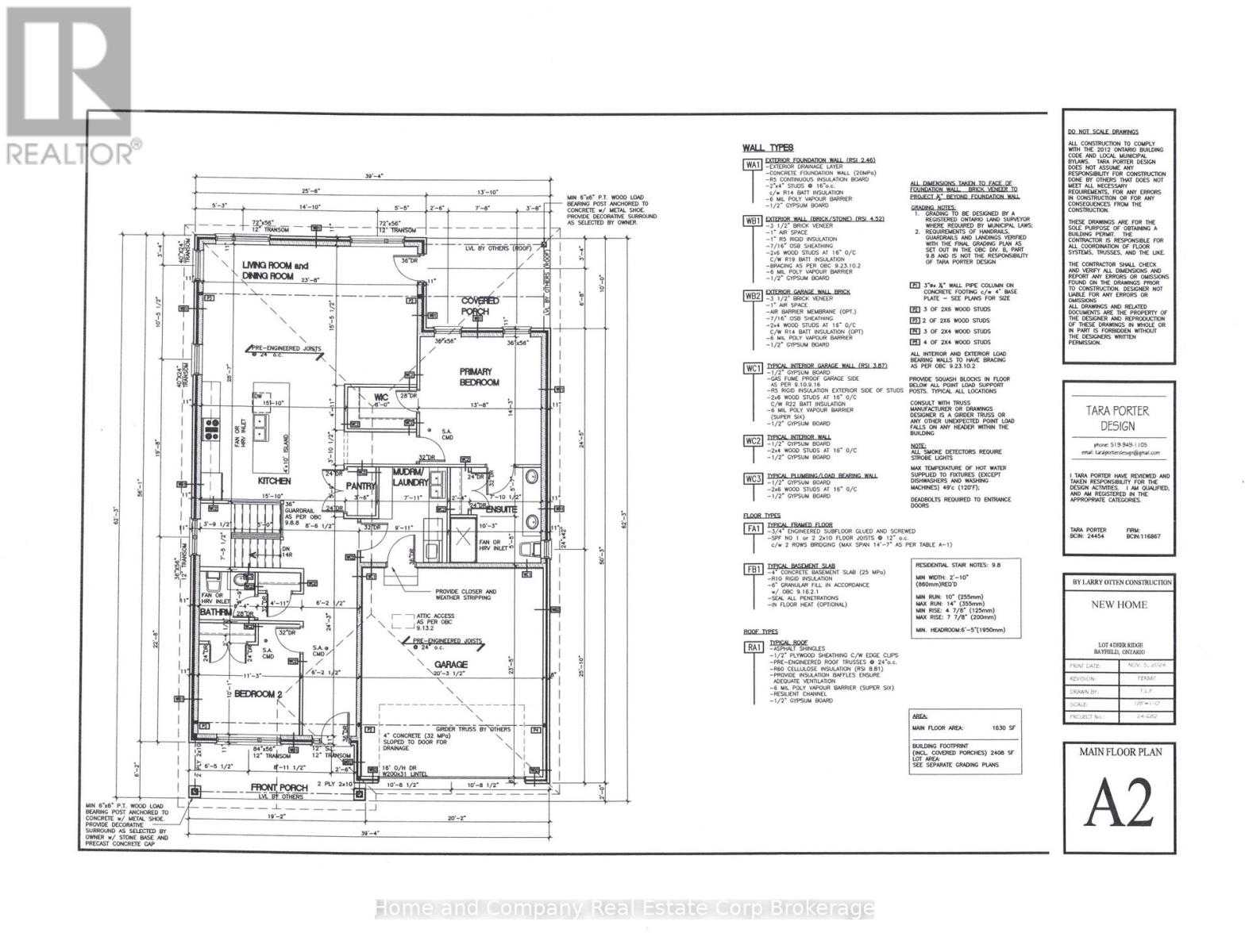
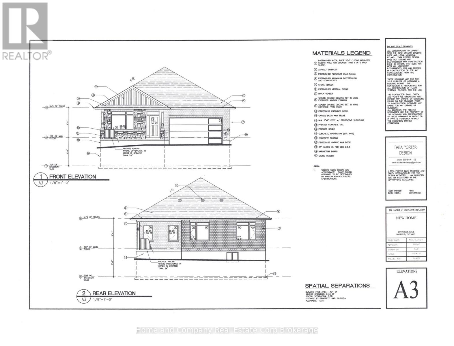
The Chase at Deer Ridge is a picturesque residential community, currently nestled amongst mature vineyards and the surrounding wooded area in the south east portion of Bayfield, a quintessential Ontario Village at the shores of Lake Huron. There will be a total of 23 dwellings, which includes 13 beautiful Bungalow Townhomes (currently under construction), and 9 detached Bungalow homes (Lot 9 Under construction) to be built by Larry Otten Contracting . The detached Bungalow on Lot 3 will be approx. 1,630 sq. ft. on the main level to include a primary bedroom with 5pc ensuite, spacious guest bedroom, open concept living/dining/kitchen area, which includes a spacious kitchen island for entertaining, walk-out to lovely covered porch, plus a 4pc bathroom, laundry and double car garage. Standard upgrades are included: Paved double drive, sodded lot, central air, 2 stage gas furnace, HVAC system, belt driven garage door opener, water softener, and water heater. The finished basement, will include a 4pc Bath, Rec-room and Bedroom with Closet, . Please see the attached supplemental documents of House Plans and Lot Plan. (id:50886)
Property Details
| MLS® Number | X12066808 |
| Property Type | Single Family |
| Community Name | Bayfield |
| Features | Carpet Free, Guest Suite |
| Parking Space Total | 6 |
Building
| Bathroom Total | 3 |
| Bedrooms Above Ground | 2 |
| Bedrooms Below Ground | 1 |
| Bedrooms Total | 3 |
| Appliances | Water Heater, Garage Door Opener Remote(s), Range, Water Softener, Water Meter, Garage Door Opener, Hood Fan |
| Architectural Style | Bungalow |
| Basement Development | Partially Finished |
| Basement Type | N/a (partially Finished) |
| Construction Status | Insulation Upgraded |
| Construction Style Attachment | Detached |
| Cooling Type | Central Air Conditioning, Air Exchanger |
| Exterior Finish | Brick, Stone |
| Foundation Type | Poured Concrete |
| Heating Fuel | Natural Gas |
| Heating Type | Forced Air |
| Stories Total | 1 |
| Size Interior | 1,500 - 2,000 Ft2 |
| Type | House |
| Utility Water | Municipal Water |
Parking
| Attached Garage | |
| Garage |
Land
| Acreage | No |
| Sewer | Septic System |
| Size Depth | 36.33 M |
| Size Frontage | 17.5 M |
| Size Irregular | 17.5 X 36.3 M |
| Size Total Text | 17.5 X 36.3 M |
| Zoning Description | R1 |
Rooms
| Level | Type | Length | Width | Dimensions |
|---|---|---|---|---|
| Basement | Recreational, Games Room | 6.88 m | 4.23 m | 6.88 m x 4.23 m |
| Basement | Utility Room | 7.97 m | 5.16 m | 7.97 m x 5.16 m |
| Basement | Bedroom | 4.1 m | 3.84 m | 4.1 m x 3.84 m |
| Basement | Bathroom | 3.04 m | 4.12 m | 3.04 m x 4.12 m |
| Main Level | Primary Bedroom | 4.34 m | 4.17 m | 4.34 m x 4.17 m |
| Main Level | Bathroom | 3.35 m | 3.12 m | 3.35 m x 3.12 m |
| Main Level | Bedroom 2 | 3.43 m | 3.07 m | 3.43 m x 3.07 m |
| Main Level | Bathroom | 3.43 m | 1.93 m | 3.43 m x 1.93 m |
| Main Level | Kitchen | 4.83 m | 4.44 m | 4.83 m x 4.44 m |
| Main Level | Living Room | 4.83 m | 4.7 m | 4.83 m x 4.7 m |
| Main Level | Laundry Room | 2.41 m | 1.75 m | 2.41 m x 1.75 m |
| Main Level | Pantry | 1.75 m | 1.07 m | 1.75 m x 1.07 m |
https://www.realtor.ca/real-estate/28131073/60-deer-ridge-lane-w-bluewater-bayfield-bayfield
Contact Us
Contact us for more information
Brad Douglas
Salesperson
www.youtube.com/embed/LDXjEn_H1ME
www.youtube.com/embed/NJb-xEVPiC0
245 Downie Street, Unit 108
Stratford, Ontario N5A 1X5
(519) 508-4663
www.homeandcompany.ca/
Tong Zhou
Salesperson
www.youtube.com/embed/JVmlp0xcS3s
www.youtube.com/embed/NJb-xEVPiC0
245 Downie Street, Unit 108
Stratford, Ontario N5A 1X5
(519) 508-4663
www.homeandcompany.ca/





















