6244 Sixth Concession Augusta, Ontario K6V 5T2
$600,000
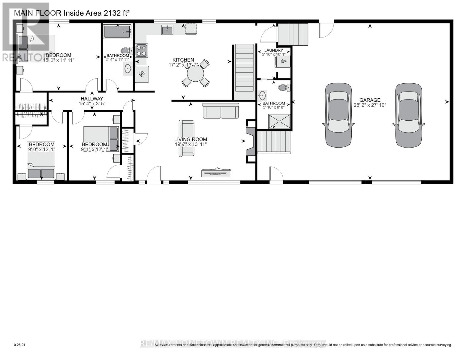
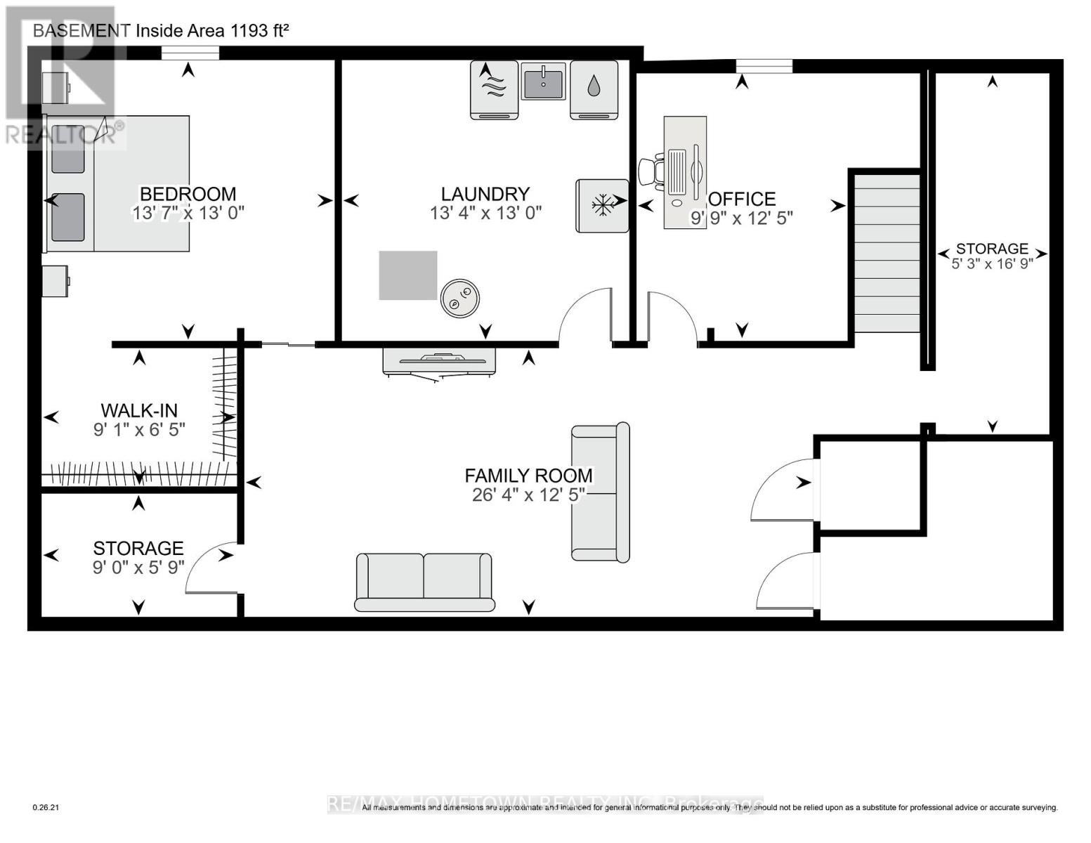
With 1200 sq ft on the main level plus a fully finished lower level, this bungalow offers space and flexibility for the whole family. Charming 3+2 Bedroom Bungalow with In-Law Suite Potential--Welcome to this move-in-ready bungalow, offering 3+2 bedrooms, 2 full baths, and a double attached oversized garage. Conveniently located just a short drive to Highway 401 and both Brockville and Prescott, this home offers excellent commuter access convenience while maintaining a quiet, family-friendly setting. As you arrive, pride of ownership and curb appeal are immediately evident. The welcoming front deck invites you inside, where you'll find a cozy living room featuring a modern accent wall with an electric fireplace. Just off the living room is the spacious eat-in kitchen, perfect for family meals and making memories. Down the hall, the main level offers a primary bedroom, two additional bedrooms, and a 4-piece bathroom. The entrance from the garage provides a practical foyer with a 3-piece bath, ideal for washing up before entering the home. The lower level boasts incredible versatility with a large family room, two bedrooms (one currently used as a gym and the other currently being used as the primary bedroom with a walk-in closet), plus laundry and utility space. A separate entrance from the garage provides easy potential for an in-law suite or rental income. Step outside to a fully fenced backyard, a safe and fun space for children and pets to play. This well-maintained bungalow offers comfort, functionality, and great potential, all in a prime location. Don't miss your chance to call it home! (id:50886)
Property Details
| MLS® Number | X12351234 |
| Property Type | Single Family |
| Community Name | 809 - Augusta Twp |
| Equipment Type | Propane Tank |
| Features | Carpet Free |
| Parking Space Total | 6 |
| Rental Equipment Type | Propane Tank |
| Structure | Deck |
Building
| Bathroom Total | 2 |
| Bedrooms Above Ground | 3 |
| Bedrooms Below Ground | 1 |
| Bedrooms Total | 4 |
| Age | 16 To 30 Years |
| Amenities | Fireplace(s) |
| Appliances | Garage Door Opener Remote(s), Water Heater, Blinds, Dishwasher, Dryer, Stove, Washer, Window Coverings, Refrigerator |
| Architectural Style | Bungalow |
| Basement Development | Finished |
| Basement Features | Separate Entrance |
| Basement Type | N/a, N/a (finished) |
| Construction Style Attachment | Detached |
| Cooling Type | Central Air Conditioning |
| Exterior Finish | Wood |
| Fireplace Present | Yes |
| Fireplace Total | 2 |
| Foundation Type | Poured Concrete |
| Heating Fuel | Propane |
| Heating Type | Forced Air |
| Stories Total | 1 |
| Size Interior | 1,100 - 1,500 Ft2 |
| Type | House |
Parking
| Attached Garage | |
| Garage |
Land
| Acreage | No |
| Fence Type | Fenced Yard |
| Landscape Features | Landscaped |
| Sewer | Septic System |
| Size Depth | 297 Ft ,10 In |
| Size Frontage | 149 Ft ,10 In |
| Size Irregular | 149.9 X 297.9 Ft |
| Size Total Text | 149.9 X 297.9 Ft |
Rooms
| Level | Type | Length | Width | Dimensions |
|---|---|---|---|---|
| Lower Level | Bedroom 4 | 3.97 m | 4.14 m | 3.97 m x 4.14 m |
| Lower Level | Laundry Room | 4.06 m | 3.97 m | 4.06 m x 3.97 m |
| Lower Level | Other | 1.74 m | 2.74 m | 1.74 m x 2.74 m |
| Lower Level | Other | 1.96 m | 2.76 m | 1.96 m x 2.76 m |
| Lower Level | Family Room | 3.8 m | 8.04 m | 3.8 m x 8.04 m |
| Lower Level | Exercise Room | 2.98 m | 3.78 m | 2.98 m x 3.78 m |
| Main Level | Living Room | 4.25 m | 5.96 m | 4.25 m x 5.96 m |
| Main Level | Kitchen | 4.13 m | 5.24 m | 4.13 m x 5.24 m |
| Main Level | Primary Bedroom | 3.64 m | 4.56 m | 3.64 m x 4.56 m |
| Main Level | Bedroom 2 | 2.76 m | 3.7 m | 2.76 m x 3.7 m |
| Main Level | Bedroom 3 | 2.74 m | 3.69 m | 2.74 m x 3.69 m |
| Main Level | Bathroom | 1.63 m | 3.64 m | 1.63 m x 3.64 m |
| Main Level | Bathroom | 1.78 m | 2.64 m | 1.78 m x 2.64 m |
https://www.realtor.ca/real-estate/28747529/6244-sixth-concession-augusta-809-augusta-twp
Contact Us
Contact us for more information
Bambi Marshall
Salesperson
26 Victoria Avenue
Brockville, Ontario K6V 2B1
(613) 342-9000
(613) 342-2933
remaxhometown.com/



























































































