638 South Line Road Barrie Island, Ontario P0P 1H0
6 Bedroom
1 Bathroom
None
Wood Stove, Baseboard Heaters
Acreage
$149,900
Country living at its finest. An older farmhouse located in a quiet & remote setting on Barrie Island. Lots of room for a large garden and/or hobby farm. Neighbouring property is an operating farm, but there are no cattle or manure pit. New roof in 2022. It is only 5 minutes away from a public boat launch and beach. This 6 bedroom 1 bathroom home could be wonderful rural home or a recreational country cottage. (id:50886)
Property Details
| MLS® Number | 2122493 |
| Property Type | Single Family |
| Equipment Type | None |
| Rental Equipment Type | None |
Building
| Bathroom Total | 1 |
| Bedrooms Total | 6 |
| Basement Type | Cellar |
| Cooling Type | None |
| Exterior Finish | Vinyl Siding |
| Flooring Type | Linoleum |
| Foundation Type | Concrete |
| Heating Type | Wood Stove, Baseboard Heaters |
| Roof Material | Asphalt Shingle |
| Roof Style | Unknown |
| Type | House |
| Utility Water | Dug Well |
Parking
| Gravel |
Land
| Acreage | Yes |
| Sewer | Septic System |
| Size Total Text | 1 - 3 Acres |
| Zoning Description | Ru |
Rooms
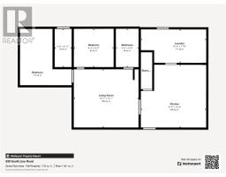
| Level | Type | Length | Width | Dimensions |
|---|---|---|---|---|
| Second Level | Bedroom | 11'2"" x 10'2"" | ||
| Second Level | Bedroom | 12' x 13' | ||
| Second Level | Bedroom | 9' x 12'5"" | ||
| Second Level | Bedroom | 8'10"" x 10'6"" | ||
| Main Level | Bedroom | 7'6"" x 13'3"" | ||
| Main Level | Bedroom | 8'10"" x 9'4"" | ||
| Main Level | 4pc Bathroom | 5'4"" x 8'10"" | ||
| Main Level | Kitchen | 15'4"" x 14'8"" | ||
| Main Level | Living Room | 13' x 15' |
https://www.realtor.ca/real-estate/28444440/638-south-line-road-barrie-island
Contact Us
Contact us for more information
Scott Mcdougall
Salesperson
(705) 368-1096
www.manitoulinproperty.com/
www.facebook.com/realestateonmanitoulin
ca.linkedin.com/in/manitoulinscottmcdougall
Bousquet Realty, Brokerage
24 Water St. P.o.box 202
Little Current, Ontario P0P 1K0
24 Water St. P.o.box 202
Little Current, Ontario P0P 1K0
(705) 368-2271
(705) 368-1096
www.manitoulinproperty.com/





















































































































































