6768 Heathwoods Avenue London South, Ontario N6P 0M2
$999,900
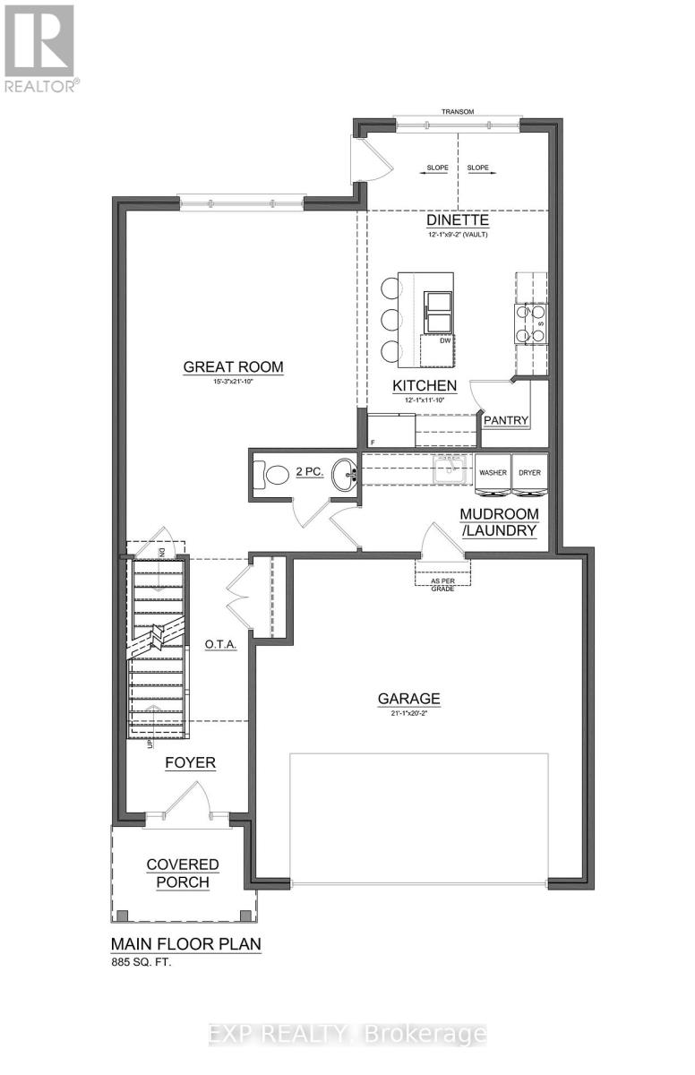
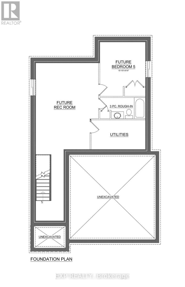
Built by Johnstone Homes, a trusted local builder serving London and area for over 35 years, this to-be-built 4-bedroom, 3-bath detached residence offers approximately 1,979 sq. ft. of finished space on a 48-ft lot with mature trees in southwest London's desirable Heathwoods community. Blending Lambeth's small-town character with commuter convenience, residents enjoy easy access to everyday amenities along Colonel Talbot Road, community programs at the Lambeth Community Centre, and swift connections to Highways 401 and 402. Inside, thoughtful design and quality finishes define the home's layout. Nine-foot ceilings, engineered hardwood flooring in main living areas, and generous allowances for cabinetry, counters, and flooring create a modern and adaptable interior. A vaulted ceiling over the dining area enhances the open-concept feel-ideal for family gatherings and entertaining. Upstairs, four spacious bedrooms provide comfort and functionality. The primary suite features a double sink vanity and glass-tiled shower, while a full main bath serves the secondary bedrooms. The unfinished basement, complete with a three-piece rough-in, offers potential for a future recreation room, gym, or guest suite. Curb appeal is elevated by a brick façade, paved-stone walkway and driveway, fully sodded yard, and an attached double garage with inside entry. Buyers will also appreciate the inclusion of ten hours with a professional design consultant to personalize their finishes. Flexible deposit options and eligibility for the announced First-Time Home Buyer credit further increase this home's accessibility and value. Secure pre-construction pricing today and make Heathwoods your next address. (id:50886)
Property Details
| MLS® Number | X12550680 |
| Property Type | Single Family |
| Community Name | South V |
| Equipment Type | Water Heater - Tankless, Water Heater |
| Features | Irregular Lot Size, Sump Pump |
| Parking Space Total | 4 |
| Rental Equipment Type | Water Heater - Tankless, Water Heater |
Building
| Bathroom Total | 3 |
| Bedrooms Above Ground | 4 |
| Bedrooms Total | 4 |
| Age | New Building |
| Appliances | Water Meter |
| Basement Development | Unfinished |
| Basement Type | Full (unfinished) |
| Construction Style Attachment | Detached |
| Cooling Type | Central Air Conditioning |
| Exterior Finish | Brick, Vinyl Siding |
| Foundation Type | Poured Concrete |
| Half Bath Total | 1 |
| Heating Fuel | Natural Gas |
| Heating Type | Forced Air |
| Stories Total | 2 |
| Size Interior | 1,500 - 2,000 Ft2 |
| Type | House |
| Utility Water | Municipal Water |
Parking
| Attached Garage | |
| Garage |
Land
| Acreage | No |
| Sewer | Sanitary Sewer |
| Size Depth | 77 Ft ,7 In |
| Size Frontage | 48 Ft ,3 In |
| Size Irregular | 48.3 X 77.6 Ft |
| Size Total Text | 48.3 X 77.6 Ft|under 1/2 Acre |
| Zoning Description | R1-3 |
Rooms
| Level | Type | Length | Width | Dimensions |
|---|---|---|---|---|
| Second Level | Primary Bedroom | 5.79 m | 3.94 m | 5.79 m x 3.94 m |
| Second Level | Bedroom | 4.09 m | 3.35 m | 4.09 m x 3.35 m |
| Second Level | Bedroom | 3.43 m | 2.79 m | 3.43 m x 2.79 m |
| Second Level | Bedroom | 2.74 m | 3.2 m | 2.74 m x 3.2 m |
| Main Level | Kitchen | 3.61 m | 3.68 m | 3.61 m x 3.68 m |
| Main Level | Dining Room | 3.68 m | 2.79 m | 3.68 m x 2.79 m |
| Main Level | Great Room | 6.65 m | 4.65 m | 6.65 m x 4.65 m |
https://www.realtor.ca/real-estate/29109596/6768-heathwoods-avenue-london-south-south-v-south-v
Contact Us
Contact us for more information
Georgia Tusch
Broker
(226) 271-4673
londonrealestateproperties.com/
www.facebook.com/TuschRealEstate
www.instagram.com/tusch.real.estate/
www.youtube.com/TheGTusch
380 Wellington Street
London, Ontario N6A 5B5
(866) 530-7737
Richard Carvell
Salesperson
www.viewhomesinlondon.com/
www.facebook.com/RichardCarvellRealEstate
www.linkedin.com/in/ richard-carvell-a027102b4
380 Wellington Street
London, Ontario N6A 5B5
(866) 530-7737
Samantha O'brien
Salesperson
(226) 781-5337
380 Wellington Street
London, Ontario N6A 5B5
(866) 530-7737
Chantal Labelle
Salesperson
380 Wellington Street
London, Ontario N6A 5B5
(866) 530-7737















