7357 Road 506 Road Frontenac, Ontario K0H 2M0
$380,000
Opportunity knocks on this nearly 6-acre property in the heart of Plevna, zoned Hamlet, allowing for a wide range of residential and mixed-use possibilities. Whether you're looking for a home-based business location, a multi-lot investment, or a peaceful rural retreat, this property checks all the boxes.The main residence is a spacious 3-bedroom, 1-bath bungalow featuring a mudroom, main floor laundry, and a partial basement with a walkout - ideal for storage or a workshop. The land is level and usable, with a large thruway driveway and plenty of space for future projects.A severance has already been approved for a 1+ acre lot, complete with its own hydro, well, and septic, giving buyers immediate flexibility for development or resale.The property also includes a large shed with 200-amp service and plumbing, perfect for a workshop or additional storage. There's also a 30' x 100' concrete pad structure, previously used as a greenhouse, featuring radiant heated floors powered by a wood boiler and two furnaces (roof replacement needed).With affordable property taxes, multiple income opportunities, and prime zoning, this property is a rare find in one of the most charming communities in the Land O' Lakes region.Live, work, and invest - all in one incredible property. (id:50886)
Property Details
| MLS® Number | X12506416 |
| Property Type | Single Family |
| Community Name | 53 - Frontenac North |
| Features | Wooded Area, Irregular Lot Size, Flat Site |
| Parking Space Total | 10 |
Building
| Bathroom Total | 1 |
| Bedrooms Above Ground | 3 |
| Bedrooms Total | 3 |
| Appliances | Water Heater, Stove, Refrigerator |
| Architectural Style | Bungalow |
| Basement Development | Unfinished |
| Basement Features | Walk Out |
| Basement Type | Partial, N/a, N/a (unfinished) |
| Construction Style Attachment | Detached |
| Cooling Type | None |
| Exterior Finish | Aluminum Siding |
| Foundation Type | Stone |
| Heating Fuel | Oil |
| Heating Type | Forced Air |
| Stories Total | 1 |
| Size Interior | 1,100 - 1,500 Ft2 |
| Type | House |
Parking
| No Garage |
Land
| Acreage | Yes |
| Sewer | Septic System |
| Size Irregular | 161.9 X 820.3 Acre |
| Size Total Text | 161.9 X 820.3 Acre|5 - 9.99 Acres |
Rooms
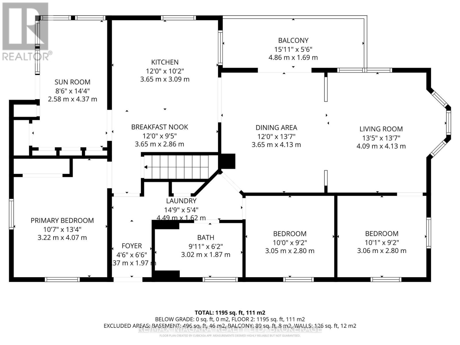
| Level | Type | Length | Width | Dimensions |
|---|---|---|---|---|
| Main Level | Kitchen | 4.49 m | 3.09 m | 4.49 m x 3.09 m |
| Main Level | Living Room | 4.09 m | 4.13 m | 4.09 m x 4.13 m |
| Main Level | Dining Room | 3.65 m | 4.13 m | 3.65 m x 4.13 m |
| Main Level | Primary Bedroom | 3.22 m | 4.07 m | 3.22 m x 4.07 m |
| Main Level | Bedroom 2 | 3.05 m | 2.8 m | 3.05 m x 2.8 m |
| Main Level | Bedroom 3 | 3.06 m | 2.8 m | 3.06 m x 2.8 m |
| Main Level | Bathroom | 3.02 m | 1.87 m | 3.02 m x 1.87 m |
| Main Level | Laundry Room | 4.49 m | 1.62 m | 4.49 m x 1.62 m |
| Main Level | Mud Room | 2.58 m | 4.37 m | 2.58 m x 4.37 m |
Contact Us
Contact us for more information
Jordan Greenough
Salesperson
5627 Main St
Niagara Falls, Ontario L2G 5Z3
(905) 356-9600
(905) 374-0241
www.remaxniagara.ca/



























































































