810 Canal Road Douro-Dummer, Ontario K9L 1A1
$1,500,000
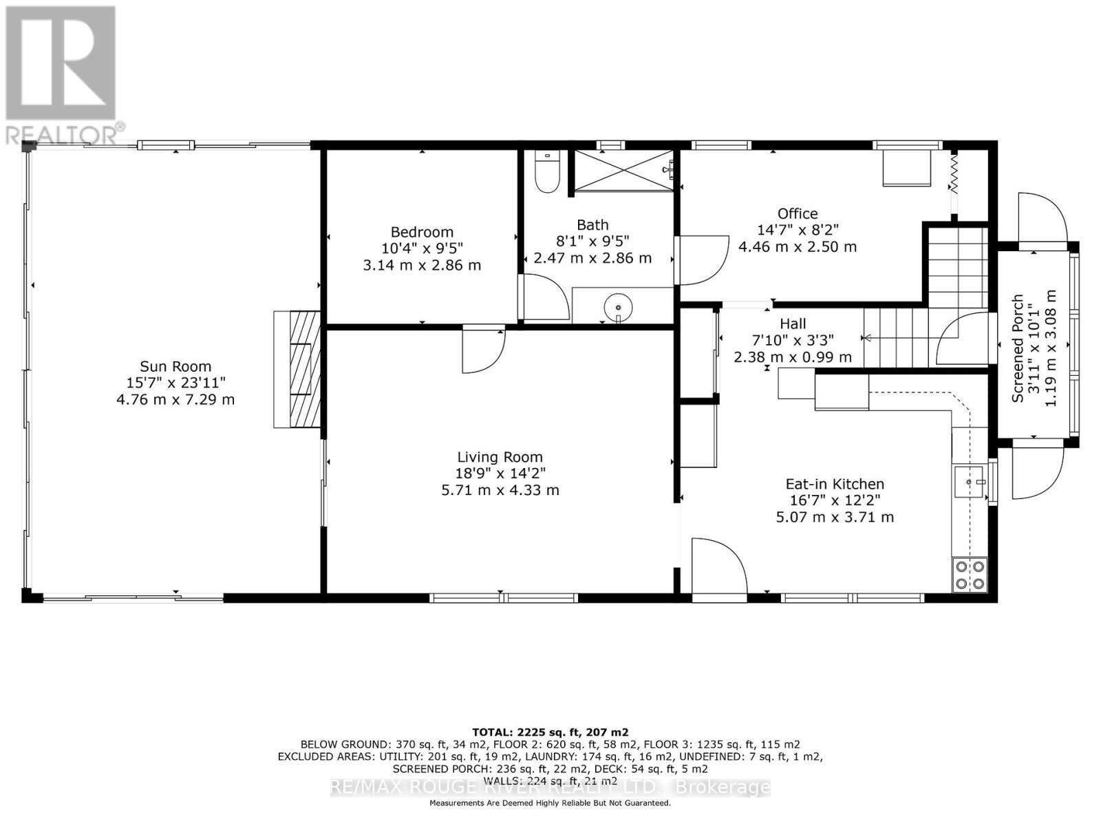
A rare find in Peterborough County! Over 5.5 acres of land sitting directly along the Trent Canal. This unique property offers space and flexibility that's within walking distance to downtown. What truly sets this property apart is its Special Designated Zoning, allowing for legal hospitality suites in a residential area. The detached four-season Guest House offers a double-suite boutique Hotel/Bed & Breakfast set-up. Successfully operating for over 24 years as the Lift lock Guest House, with returning guests from around the world and excellent online reviews. Each suite offers a private entrance and covered porch, kitchenette, and full bathroom; perfect for continuing the hospitality operation, creating a multi-generational set-up, or offering extended family their own space. The main home is warm and functional, featuring a bright sunroom overlooking the water, two bedrooms on the main floor, a third bedroom downstairs, and plenty of extra storage and workspace. An above ground pool, dog kennel, fenced animal pasture, and powered workshop add to the functionality of this rare estate. This property also benefits from two alternate entrances possible via Plati and Helen Avenue on the east side of the property line, offering increased usability and potential for the future. Whether you're seeking supplemental retirement income, room for extended family, or simply a lifestyle with more options and space, 810 Canal Road offers all this and more, right at the edge of Peterborough's vibrant city center. (id:50886)
Property Details
| MLS® Number | X12335904 |
| Property Type | Single Family |
| Community Name | Douro-Dummer |
| Amenities Near By | Public Transit |
| Community Features | Fishing, School Bus |
| Equipment Type | Water Heater, Propane Tank |
| Features | Wooded Area, Irregular Lot Size, Ravine, Partially Cleared, Waterway, Open Space, Dry, Carpet Free, Guest Suite |
| Parking Space Total | 8 |
| Pool Type | Above Ground Pool |
| Rental Equipment Type | Water Heater, Propane Tank |
| Structure | Porch, Deck, Workshop, Shed |
| View Type | View Of Water, Direct Water View |
| Water Front Type | Waterfront |
Building
| Bathroom Total | 3 |
| Bedrooms Above Ground | 2 |
| Bedrooms Below Ground | 3 |
| Bedrooms Total | 5 |
| Age | 51 To 99 Years |
| Appliances | Water Heater, Furniture, Window Coverings |
| Architectural Style | Raised Bungalow |
| Basement Development | Partially Finished |
| Basement Type | Full (partially Finished) |
| Construction Style Attachment | Detached |
| Cooling Type | Central Air Conditioning |
| Exterior Finish | Wood |
| Fire Protection | Smoke Detectors, Monitored Alarm |
| Foundation Type | Concrete |
| Heating Fuel | Electric |
| Heating Type | Forced Air |
| Stories Total | 1 |
| Size Interior | 1,500 - 2,000 Ft2 |
| Type | House |
| Utility Water | Drilled Well |
Parking
| No Garage |
Land
| Acreage | Yes |
| Fence Type | Partially Fenced, Fenced Yard |
| Land Amenities | Public Transit |
| Sewer | Septic System |
| Size Depth | 794 Ft |
| Size Frontage | 137 Ft ,9 In |
| Size Irregular | 137.8 X 794 Ft |
| Size Total Text | 137.8 X 794 Ft|5 - 9.99 Acres |
| Zoning Description | Sd 176 |
Rooms
| Level | Type | Length | Width | Dimensions |
|---|
Utilities
| Cable | Available |
| Electricity | Installed |
https://www.realtor.ca/real-estate/28714564/810-canal-road-douro-dummer-douro-dummer
Contact Us
Contact us for more information
Nicole Leslie Styles
Salesperson
www.nicolestyles.ca/
www.facebook.com/NicoleStylesRemaxLakeshore
66 King Street East
Cobourg, Ontario K9A 1K9
(905) 372-2552
www.remaxrougeriver.com/



































































































