89b William Street W Waterloo, Ontario N2L 1J6
$515,000
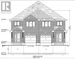
Premium Investment Opportunity - Presenting a rare and highly sought-after investment opportunity in the heart of Waterloo's most coveted location William St W. This permit-ready, subdivided two-lot package offers an unparalleled foundation for immediate development. Key Features:Approved for Construction: City-approved plans for 4 units, including two - 2-story, 3-bedroom, 2.5-bath homes with spacious main and second floors. Fully approved for a 2-bedroom, 1-bathroom auxiliary dwelling unit, providing additional rental income potential. Demolition Complete: The property is already cleared, leaving you with a blank slate to implement your vision and start construction right away.Prime Location: Situated on the desirable and highly accessible William Street, this property offers unbeatable value in a growing, high-demand area.This is an exceptional opportunity for investors to capitalize on a turn-key project with all the initial work done for you. Do not miss your chance to develop on one of the few available lots with this level of approval and potential. All thats left is for you to make your mark! To be sold as a package with 89A William St W , price per lot. Architectural Drawings attached. Taxes to be assessed by the city still as taxes listed reflect taxes combined. Town approved building permit plans available (id:50886)
Property Details
| MLS® Number | X12421003 |
| Property Type | Vacant Land |
Building
Land
| Acreage | No |
| Size Depth | 131 Ft ,3 In |
| Size Frontage | 29 Ft ,5 In |
| Size Irregular | 29.48 X 131.33 Ft ; **as Per Geowarehouse |
| Size Total Text | 29.48 X 131.33 Ft ; **as Per Geowarehouse|under 1/2 Acre |
Utilities
| Cable | Available |
| Electricity | Available |
| Sewer | Available |
https://www.realtor.ca/real-estate/28900826/89b-william-street-w-waterloo
Contact Us
Contact us for more information
Shawna Mcfadyen
Salesperson
www.shawnamcfadyen.com/
49 High Street 3rd Floor, 106545
Barrie, Ontario L4N 5J4
(647) 360-2330























