93 Dawson Road Orangeville, Ontario L9W 2W7

4 Bedroom 2 Bathroom 700 - 1,100 ft2
Bungalow Central Air Conditioning Forced Air

$659,900

This versatile 3 + 1 bed semi-detached bungalow in Orangeville features an in-law suite with a separate entrance, ideal for multi-generational living or income potential. The lower level includes a bright, updated kitchen, spacious living area, one bedroom, and a stunning bathroom with heated floors, a walk-in glass and tile shower, stylish vanity, and its own laundry. Upstairs offers three bedrooms, a four-piece bath, and a large open concept sun-filled living/dining room with a huge front window. The main level boasts hardwood flooring throughout and convenient in-suite laundry. The property also features a newer roof, a large backyard with a large shed and parking for up to 5 vehicles and no sidewalk. Located close to schools, parks, and transit, this well-maintained home blends comfort, flexibility, and convenience in a desirable Orangeville neighbourhood. (id:50886)

Property Details

MLS® Number W12480898
Property Type Single Family
Community Name Orangeville
Equipment Type Water Heater
Features In-law Suite
Parking Space Total 5
Rental Equipment Type Water Heater

Building

Bathroom Total 2
Bedrooms Above Ground 3
Bedrooms Below Ground 1
Bedrooms Total 4
Appliances Water Softener, Water Meter, Dishwasher, Dryer, Stove, Window Coverings, Refrigerator
Architectural Style Bungalow
Basement Development Finished
Basement Features Separate Entrance
Basement Type N/a (finished), N/a
Construction Style Attachment Semi-detached
Cooling Type Central Air Conditioning
Exterior Finish Brick
Flooring Type Tile, Hardwood, Laminate
Foundation Type Block
Heating Fuel Natural Gas
Heating Type Forced Air
Stories Total 1
Size Interior 700 - 1,100 Ft2
Type House
Utility Water Municipal Water

Parking

No Garage

Land

Acreage No
Sewer Sanitary Sewer
Size Depth 119 Ft
Size Frontage 30 Ft
Size Irregular 30 X 119 Ft
Size Total Text 30 X 119 Ft

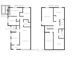
Rooms

Level Type Dimensions
Lower Level Kitchen 3.3 m x 3.22 m
Lower Level Living Room 5.33 m x 3.43 m
Lower Level Bedroom 4.08 m x 3.23 m
Lower Level Utility Room 5.08 m x 2.51 m
Main Level Kitchen 4.82 m x 2.51 m
Main Level Dining Room 2.24 m x 3.23 m
Main Level Living Room 4.45 m x 3.22 m
Main Level Primary Bedroom 2.54 m x 3.43 m
Main Level Bedroom 2 3.56 m x 2.29 m
Main Level Bedroom 3 2.69 m x 2.38 m

Utilities

Cable Available
Electricity Available
Sewer Installed

https://www.realtor.ca/real-estate/29030000/93-dawson-road-orangeville-orangeville

Contact Us

Contact us for more information

Generating Captcha

Stephen Kelk
Salesperson

(519) 217-3829
orangevillerealestateagent.com/

Housesigma Inc.
15 Allstate Parkway #629
Markham, Ontario L3R 5B4

(647) 360-2330
housesigma.com/

Your Favourites

 

No Favourites Found