94 Bakers Road Elizabethtown-Kitley, Ontario K0E 1Y0

2 Bedroom 1 Bathroom 700 - 1,100 ft2
Bungalow None Forced Air

$309,900

Welcome to this bright and welcoming 2-bedroom, 1-bathroom bungalow in the peaceful village of Toledo, Ontario. A perfect blend of country charm and everyday comfort. Step inside and you're greeted by a spacious entryway that sets the tone for the home - warm, open, and inviting, with plenty of room for coats, boots, and everyday essentials. From there, flow easily into the bright living area, where large picture windows frame open views of the surrounding country side. The kitchen/dining room offers rich cabinetry, modern appliances, and a comfortable space for preparing meals and gathering with family or friends. Both bedrooms are comfortably sized, while the updated 4-piece bathroom features clean finishes and a timeless design. The convenience of main-floor laundry adds practicality to this cozy layout. Downstairs, the full unfinished basement provides excellent storage and endless potential for future finishing - complete with a sump pump for peace of mind. Outside, the covered front porch is ideal for enjoying your morning coffee or relaxing at sunset, overlooking peaceful country views. The expansive yard offers space for gardening, kids, pets, or simply enjoying the outdoors. With ample parking, quiet surroundings, and easy access to Brockville, Smiths Falls, and surrounding communities, this property offers the best of rural living with modern convenience. Experience the ease, comfort, and charm of small-town life. (id:50886)

Property Details

MLS® Number X12477643
Property Type Single Family
Community Name 814 - Elizabethtown Kitley (Old K.) Twp
Equipment Type Water Heater
Features Carpet Free, Sump Pump
Parking Space Total 4
Rental Equipment Type Water Heater

Building

Bathroom Total 1
Bedrooms Above Ground 2
Bedrooms Total 2
Appliances Dryer, Stove, Washer, Refrigerator
Architectural Style Bungalow
Basement Development Unfinished
Basement Type N/a (unfinished)
Construction Style Attachment Detached
Cooling Type None
Exterior Finish Vinyl Siding
Foundation Type Concrete, Block
Heating Fuel Oil
Heating Type Forced Air
Stories Total 1
Size Interior 700 - 1,100 Ft2
Type House

Parking

No Garage

Land

Acreage No
Sewer Septic System
Size Irregular 100 X 165 Acre
Size Total Text 100 X 165 Acre

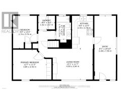
Rooms

Level Type Dimensions
Basement Other 8.99 m x 7.32 m
Main Level Foyer 2.48 m x 7.58 m
Main Level Living Room 4.59 m x 3.54 m
Main Level Kitchen 2.43 m x 3.78 m
Main Level Primary Bedroom 3.84 m x 3.43 m
Main Level Bedroom 2 2.74 m x 3.74 m
Main Level Bathroom 1.7 m x 2.73 m
Main Level Laundry Room 1.92 m x 1.57 m

https://www.realtor.ca/real-estate/29023046/94-bakers-road-elizabethtown-kitley-814-elizabethtown-kitley-old-k-twp

Contact Us

Contact us for more information

Generating Captcha

Orlando Spicer
Broker

(613) 803-0945
www.youtube.com/embed/LoacQWIYDU8
www.youtube.com/embed/OK4GDqOEv9g

Modern Brock Group Realty
37 Temperance Road
Athens, Ontario K0E 1B0

(613) 802-7917

Your Favourites

 

No Favourites Found