Lot 17 - 71 Dearing Drive South Huron, Ontario N0M 1T0
$1,075,000
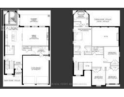
To BE BUILT in Sol Haven, Grand Bend! Tasteful Elegance in this Stunning 2 storey Magnus Homes SAPPHIRE Model. This 2493 square foot Model could sit nicely on a 49 ft standard lot in the NEW Sol Haven, Grand Bend subdivision. This Model has an open, expansive 2 storey Great Room. Large dining cove Bay Window off the wide kitchen makes the MAIN FLOOR, family ready, open and inviting. You'll live outside on the wide Covered back deck looking over your yard! Ready for backyard BBQ's! The Second Level boasts a Large Primary bedroom with a large ensuite in that same Bay Window bump out! Two walk-in closets complete this Primary Oasis. Lots of space for storage and making the space your own. The 3 other spacious bedrooms and full bath complete the second level, overlooking the Great Room Below. The main-floor touts a large laundry and main floor powder room. There are many more Magnus styles to choose from including bungalows and two-story models. **Note - Photos Show other Magnus build in KWH/London! We have many larger Premium Plans and lots, backing onto trees, ravine and trails to design your custom Home. Come and see what Grand Bend living offers-Healthy, Friendly small-town living, Walks by the lake, great social life and restaurants. Come and see our model at 4 Sullivan St. in Sol Haven Grand Bend! (id:50886)
Property Details
| MLS® Number | X12499060 |
| Property Type | Single Family |
| Community Name | Stephen |
| Equipment Type | Water Heater, Water Heater - Tankless |
| Parking Space Total | 4 |
| Rental Equipment Type | Water Heater, Water Heater - Tankless |
Building
| Bathroom Total | 3 |
| Bedrooms Above Ground | 4 |
| Bedrooms Total | 4 |
| Appliances | Garage Door Opener Remote(s), Water Heater - Tankless, Garage Door Opener |
| Basement Development | Unfinished |
| Basement Type | Full (unfinished) |
| Construction Style Attachment | Detached |
| Exterior Finish | Vinyl Siding, Brick |
| Foundation Type | Poured Concrete |
| Half Bath Total | 1 |
| Heating Fuel | Electric, Natural Gas |
| Heating Type | Heat Pump, Not Known |
| Stories Total | 2 |
| Size Interior | 2,000 - 2,500 Ft2 |
| Type | House |
| Utility Water | Municipal Water |
Parking
| Attached Garage | |
| Garage |
Land
| Acreage | No |
| Sewer | Sanitary Sewer |
| Size Depth | 98 Ft ,4 In |
| Size Frontage | 49 Ft |
| Size Irregular | 49 X 98.4 Ft |
| Size Total Text | 49 X 98.4 Ft |
| Zoning Description | Ur1-38 |
Rooms
| Level | Type | Length | Width | Dimensions |
|---|---|---|---|---|
| Second Level | Bedroom 3 | 3.26 m | 4.27 m | 3.26 m x 4.27 m |
| Second Level | Bedroom 4 | 3.26 m | 3.69 m | 3.26 m x 3.69 m |
| Second Level | Bathroom | 2.77 m | 1.86 m | 2.77 m x 1.86 m |
| Second Level | Primary Bedroom | 4.36 m | 4.57 m | 4.36 m x 4.57 m |
| Second Level | Bathroom | 3.66 m | 3.66 m | 3.66 m x 3.66 m |
| Second Level | Bedroom 2 | 3.66 m | 3.72 m | 3.66 m x 3.72 m |
| Main Level | Dining Room | 3.41 m | 3.72 m | 3.41 m x 3.72 m |
| Main Level | Kitchen | 4.32 m | 4.29 m | 4.32 m x 4.29 m |
| Main Level | Other | 7.32 m | 2.74 m | 7.32 m x 2.74 m |
| Main Level | Great Room | 6.4 m | 4.29 m | 6.4 m x 4.29 m |
| Main Level | Laundry Room | 4.17 m | 2.13 m | 4.17 m x 2.13 m |
| Main Level | Bathroom | 2.13 m | 0.94 m | 2.13 m x 0.94 m |
| Main Level | Foyer | 1.98 m | 3.38 m | 1.98 m x 3.38 m |
https://www.realtor.ca/real-estate/29056572/lot-17-71-dearing-drive-south-huron-stephen-stephen
Contact Us
Contact us for more information
Christine Crncich
Salesperson
(519) 670-6989
(519) 670-0385
Mike Ashby
Salesperson
380 Wellington Street
London, Ontario N6A 5B5
(866) 530-7737















































