(Main Level) - 473 Oakwood Avenue Toronto, Ontario M6E 2W4
$27.20 / ft2
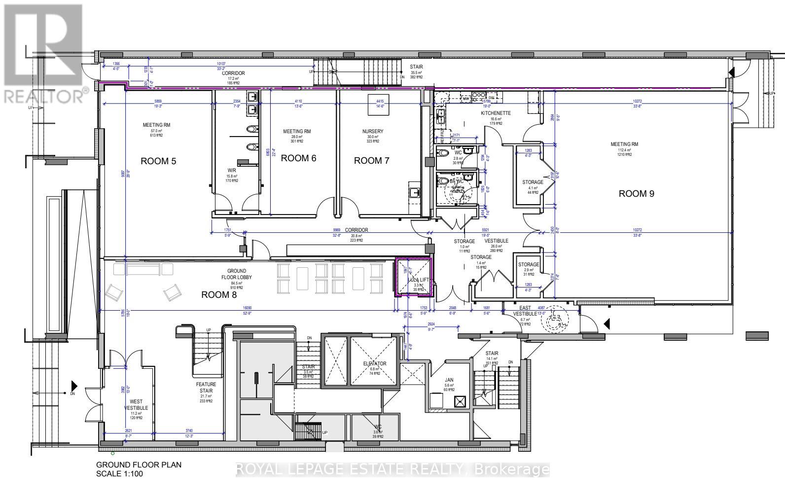
Renovations are complete and the flagship main floor of our new building is available forlease. A short walk south of Eglinton CrossTown, or north from St Clair streetcar, thisrevitalizing area is perfect for your uptown west business. Large main floor perfect for Yoga,Dance, Marshall Arts, Fitness, or Wellness group activities, recreational children's children'sprograms or tutoring. Includes floor-to-ceiling windows and a covered outdoor area. The 3434square foot area may be divided into private, smaller rooms.Let your business enjoy the partnership with the landlord, other tenants and communities. Enjoyno additional utility and internet charges (all included in rent). Enjoy lower GST charges andproperty tax charges (due to Landlord status as a church). Enjoy preferential access to theupstairs event spaces. Elevator access to accessible washrooms. (id:50886)
Property Details
| MLS® Number | C12437656 |
| Property Type | Retail |
| Community Name | Oakwood Village |
| Amenities Near By | Public Transit |
| Farm Type | Other |
| Features | Elevator |
Building
| Age | 0 To 5 Years |
| Cooling Type | Fully Air Conditioned |
| Heating Fuel | Electric |
| Heating Type | Forced Air |
| Size Interior | 3,434 Ft2 |
| Utility Water | Municipal Water |
Land
| Acreage | No |
| Land Amenities | Public Transit |
| Size Depth | 169 Ft ,1 In |
| Size Frontage | 77 Ft ,3 In |
| Size Irregular | 77.27 X 169.12 Ft |
| Size Total Text | 77.27 X 169.12 Ft |
| Zoning Description | Rm Cr2 |
Contact Us
Contact us for more information
Matt Wood
Salesperson
507 King St E
Toronto, Ontario M5A 1M3
(416) 690-5100













