95997 results | Page 1857 of 2000
12 24 48
 
For sale
$437,500
732 124 HIGHWAY, McKellar, Ontario

732 124 Highway

Mckellar, Ontario

Fantastic opportunity to own 5.8 acres on the edge of McKellar Village - the perfect canvas for your future home. This year-round accessible lot has already had much of the work completed including clearing, septic, hydro, driveway and propane installation. A massive 80' x 40' insulated quonset hut with plumbed in-floor heating and plumbing (ready to be connected) provides incredible space for a workshop, storage or future projects. Surrounded by nature yet equipped with modern infrastructure this property offers the ideal blend of peace, privacy and practicality. Just steps from all village amenities including Bistro 685, the general store, LCBO, community centre, post office, library, the popular McKellar Market and only minutes from McKellar, Manitouwabing and Armstrong Lakes plus Manitou Ridge Golf Club. A beautiful beginning to your dream residence - book your showing today! (id:50886)

Royal LePage Team Advantage Realty

For sale
$490,000
6256 NICK ADAMS ROAD, Ottawa, Ontario

6256 Nick Adams Road

Ottawa, Ontario

Build the Home You've Always Dreamed Of , in Prestigious Nick Adams Estates. Set your vision in motion on this premium 2.23-acre lot, nestled in one of the last city-approved estate communities in the area. Located just minutes from Manotick and Greely, this exclusive enclave offers the rare blend of privacy, prestige, and proximity.This ready-to-build property has it all: Drilled and tested well, Septic approved , Grading and Accessible services. Design a custom home of 2,000 sq.ft. or more. Crafted to your taste and lifestyle, surrounded by nature and upscale living.Opportunities like this are disappearing. Secure your slice of luxury before its gone. Your dream home starts here! Sellers are motivated. (id:50886)

Sutton Group - Ottawa Realty

For rent
$28.20 Monthly
3720 19TH STREET, Lincoln, Ontario

3720 19th Street

Lincoln, Ontario

Prime commercial lease space in a Prime Area!! From between approximately 1000 square feet to between almost approximately 7600 square feet will be available coming soon in the prestigious Jordan Village. This Gorgeous soon to be renovated building is only minutes to the QEW and is centrally located in the Niagara wine region. This space is situated on the same street as Inn on the Twenty, the Jordan house and Cave Springs winery and is perfect for a retail store, professional office and many other possible uses. (id:50886)

7,600 ft2

Coldwell Banker Momentum Realty

For sale
$1,799,990
25754 35 HIGHWAY, Lake of Bays, Ontario

25754 35 Highway

Lake Of Bays, Ontario

Prime Muskoka Commercial Opportunity - Multi Units in this 4500 sq.ft. constructed newer commercial building. Located in a well-established tourist area with excellent highway visibility. Bring your ideas! C-1 zoning allows for a comprehensive list of uses such as retail stores, offices, restaurants, storage units, health care, fitness, winery/brewery, craftsman, contractor establishment plus many more uses. The current layout has 3 retail/ office/ spa/ gallery units and a large separate unit for various uses; kitchen, catering, restaurant, woodworking, wine making etc The building has the potential to accommodate 6 rental units besides the current configuration. Level, 3.6 acres allow for potential further expansion on the property including a residential home. Dwight has many new housing projects being constructed and these new homes will bring a large year-round population to complement the large area cottage and tourist populations. The bustling village of Dwight has many convenient amenities including local bakeries, restaurants, unique shops, LCBO, grocery market with pharmacy, gas station, marinas, building/hardware store plus nearby trails, OFSC snowmobile & ATV trails. Other community amenities include a public school, library, community centre, township office, churches and a seniors recreation hall. Lake of Bays is cherished for its wonderful beach, fantastic boating, watersports plus trout fishing! In the township of Lake of Bays, there are 100 lakes and close to large tracts of crown land for adventure and exploring. A location you can't beat and within a 15-minute drive to the Town of Huntsville, Limberlost Forest Reserve Trails and the West gate of Algonquin Park. The current owners are retiring their business Honey products and Honey Wine Meadery and there is a delightful restaurant operating in one of the units. (id:50886)

4,500 ft2

RE/MAX All-Stars Realty Inc

For sale
$624,900
159 MERRITT STREET W, Welland, Ontario

159 Merritt Street W

Welland, Ontario

Welcome to 159 Merritt Street West, Welland, a charming, well-maintained century home full of character and modern comforts! This spacious 3+1 bedroom, 2-bathroom home features two updated 3-piece bathrooms and a thoughtfully designed kitchen. Loaded with original features such as crown moulding, glass doorknobs, and beautiful original hardwood floors. Large primary bedroom with massive walk-in closet. Pride of ownership is evident throughout, with beautiful landscaping, a fully fenced yard for privacy, and classic touches that make this home warm and inviting. Located just steps from parks, the library, scenic canal trails, restaurants, and shopping, this is the ideal spot for families or anyone looking to enjoy a walkable lifestyle in a friendly neighbourhood. Whether you're relaxing in the backyard or entertaining inside, this home blends old-world charm with practical updates. Don't miss your chance to own a lovingly cared-for piece of Welland history! (id:50886)

6 Bedroom 2 Bathroom 2,000 - 2,500 ft2

Coldwell Banker Advantage Real Estate Inc

For sale
$125,000
LOT 241 HUMBOLDT PARKWAY, Port Colborne, Ontario

Lot 241 Humboldt Parkway

Port Colborne, Ontario

Prime Building Lot (Lot 241) is situated in quiet and friendly neighbourhood of Port Colborne! Potential to build a new home over 2000 sqft on Lot 241. Zoning (R2) allows for Single detached home or Duplex. Gas, Hydro, and Water services are at the lot line. Close to all amenities. Schools, Welland Canal and Bridge, Lake Erie, Park and Marina, Local cafes and restaurants. Buyer to do own due diligence for the intended use. Great opportunity to build your dream home or look for the next investment to add to your portfolio. (id:50886)

0 - 699 ft2

Realty Executives Plus Ltd

For sale
$425,000
31810 JACOB LANE, Wainfleet, Ontario

31810 Jacob Lane

Wainfleet, Ontario

Build your dream home in this executive rural subdivision in beautiful Wainfleet. Walk your children to the brand new Marshville school and sports activities in the local arena. Enjoy endless activities in the thriving library or amazing Marshville Chocolates as often as you like! One of 13 lots in this exclusive development and the only lot to be offered with builder choice. Homes are to be a minimum of 2000 sq ft and French Country Style with brick/stone or Hardee Board/Stucco exterior. Hydro runs along the lot line. Lot includes approximately 100' of bush. Minutes to beautiful Lake Erie and thriving Port Colborne with all amenities including unique eateries and boutiques. Start enjoying your rural life! (id:50886)

RE/MAX Niagara Realty Ltd

For sale
$274,500
102 CONCESSION STREET, Westport, Ontario

102 Concession Street

Westport, Ontario

One of 4 Lots up for sale that overlook the Upper Rideau Lake in the Village of Westport. This lot is the largest and the corner lot. All lots will be conditional upon the addition of the railroad bed at the rear of each lot, and will also be conditional on services of Village water & sewer being brought to each lot. The lots have a beautiful view and will provide a perfect setting for a new home. Design & build whatever you choose. Taxes are unassessed at this time and the $625.96( in this listing) and reflect the total of the four lots together once they have water & sewer and separate assessments they are likely to increase significantly. All offers must contain a Schedule B and a signed copy of Form 161. and must be conditional on the lot addition & water and sewage being added. (id:50886)

0 - 699 ft2

Right At Home Realty

For sale
$179,000
100 CONCESSION STREET, Westport, Ontario

100 Concession Street

Westport, Ontario

One of 4 Lots up for sale that overlook the Upper Rideau Lake in the Village of Westport. This lot is the second lot from the corner of Concession St & Perth Rd/County RD #10. All lots will be conditional upon the addition of the railroad bed at the rear of each lot, and will also be conditional on services of Village water & sewer being brought to each lot. The lots have a beautiful view and will provide a perfect setting for anew home. Design & build whatever you choose. Taxes are unassessed at this time and the $659.18( in this listing) and reflect the total of the four lots together once they have water & sewer and separate assessments they are likely to increase significantly. All offers must contain aSchedule B and a signed copy of Form 161. and must be conditional on the lot addition & water and sewage being added. (id:50886)

0 - 699 ft2

Right At Home Realty

For sale
$199,000
405 OXFORD AVENUE, Fort Erie, Ontario

405 Oxford Avenue

Fort Erie, Ontario

Welcome to the heart of Crystal Beach! This prime vacant lot offers 33.43' of frontage and 80.51' of depth with sought-after R2B zoning, perfect for building your dream home or investment property. Located just steps from the local shops, restaurants, and the beach, this lot comes with available plans for a charming 1.5 storey home, saving you time and vision. A rare opportunity to build in one of Niagara's most beloved beach communities! (id:50886)

Revel Realty Inc.

For sale
$179,000
98 CONCESSION STREET, Westport, Ontario

98 Concession Street

Westport, Ontario

One of 4 Lots up for sale that overlook the Upper Rideau Lake in the Village of Westport. This lot is the third lot from the corner of Concession St & Perth Rd/County RD #10. All lots will be conditional upon the addition of the railroad bed at the rear of each lot, and will also be conditional on services of Village water & sewer being brought to each lot. The lots have a beautiful view and will provide a perfect setting for a new home. Design & build whatever you choose. Taxes are unassessed at this time and the $659.18( in this listing) and reflect the total of the four lots together once they have water & sewer and separate assessments they are likely to increase significantly. All offers must contain a Schedule B and a signed copy of Form 161. and must be conditional on the lot addition & water and sewage being added. (id:50886)

0 - 699 ft2

Right At Home Realty

For sale
$199,900
LOT 11 NORTH STREET, Howick, Ontario

Lot 11 North Street

Howick, Ontario

Discover the perfect canvas for your dream home in this stunning new subdivision. This half-acre lot offers ample space for a custom build while maintaining the charm of a close-knit community. Nestled in a sought after, rural area with convenient access to local amenities, schools, and major highways. Enjoy the tranquility of a thoughtfully planned neighbourhood with a peaceful atmosphere. The generous size of this lot accommodates a wide range of architectural styles and outdoor living ideas. Nearby parks, arena, sports fields and walking trails add to the appeal of this exceptional neighbourhood. Don't miss this rare opportunity to secure your slice of paradise in a stunning, rural location. Contact Your REALTOR Today Find Out More Information and To Reserve The Lot for Your New Dream Home. (id:50886)

Royal LePage Heartland Realty

For sale
$179,000
96 CONCESSION STREET, Westport, Ontario

96 Concession Street

Westport, Ontario

One of 4 Lots up for sale that overlook the Upper Rideau Lake in the Village of Westport. This lot is the fourth lot from the corner of Concession St & Perth Rd/County RD #10. All lots will be conditional upon the addition of the railroad bed at the rear of each lot, and will also be conditional on services of Village water & sewer being brought to each lot. The lots have a beautiful view and will provide a perfect setting for a new home. Design & build whatever you choose. Taxes are unassessed at this time and the $659.18( in this listing) and reflect the total of the four lots together once they have water & sewer and separate assessments they are likely to increase significantly. All offers must contain a Schedule B and a signed copy of Form 161. and must be conditional on the lot addition & water and sewage being added. (id:50886)

0 - 699 ft2

Right At Home Realty

For sale
$85,000
0 BARRY LINE ROAD, Algonquin Highlands, Ontario

0 Barry Line Road

Algonquin Highlands, Ontario

Discover this level, just-over-1-acre building lot perfectly positioned at the corner of Barry Line Road and Cameron Lane. Barry Line Road is maintained year-round by the municipality, youll enjoy easy access in every season. Located only minutes from West Guilford, where youll find a convenient general store complete with an LCBO outlet, public beach and community center. Ten minutes from the Village of Haliburton, this property offers the ideal balance of rural tranquility and nearby conveniences. The sandy soil makes excavation a breeze, setting the stage for your dream home or cottage. A hydro easement runs through the property. (id:50886)

RE/MAX Professionals North

For sale
$311,000
6172 CURLIN CRESCENT, Niagara Falls, Ontario

6172 Curlin Crescent

Niagara Falls, Ontario

Rare Find! A vacant residential lot with no builder contract! Build your own custom home in this highly sought after neighbourhood in Niagara Falls. Seller Financing is available for this piece of land with 25% down to help you build your dream home. (id:50886)

RE/MAX Niagara Realty Ltd

For sale
$369,000
LOT 78 141 HIGHWAY, Seguin, Ontario

Lot 78 141 Highway

Seguin, Ontario

Shadow River Riverfront Estate Lot | 4.55 Acres with 700' of Shoreline. Discover an extraordinary opportunity to craft your own Northern retreat on the tranquil shores of the Shadow River. This rare 4.55-acre estate lot offers an impressive 700 feet of private water frontage, set amidst a serene landscape of open meadow and scattered young hardwoods. Elevated well above the floodplain, the expansive 1.24-acre building envelope provides the ideal canvas for a grand main residence, extensive outdoor living spaces, and private amenities. Gently rolling and beautifully drained, the land invites elegant driveway approaches, manicured gardens, and sweeping river views. Enjoy peaceful paddles along the Shadow River or explore the nearby waters of Lake Rosseau, just minutes away. An MTO-approved driveway from Highway 141 ensures effortless year-round access, with the charming village of Rosseau only 5 minutes away, the Parry Sound Municipal Airport 20 minutes and Highway 400 just beyond. Unmatched in privacy, scale, and location, this is an opportunity perfect for those who dream of designing a riverfront estate that will be cherished for generations. (id:50886)

Engel & Volkers Parry Sound

For sale
$349,900
2651 WESSEL DRIVE, Pelham, Ontario

2651 Wessel Drive

Pelham, Ontario

Beautiful Farm Parcel in Pelham! Discover the charm of rural Niagara with this rare opportunity just west of Short Hills Provincial Park, near the hamlet of Effingham. This picturesque parcel offers just over 1.7 acres of farmland with frontage on two roads, making it a versatile piece of property in a sought-after location. Nestled within the boundaries of the Niagara Escarpment Commission, this land provides a serene, scenic setting surrounded by nature and rolling countryside. Please note: residential building permits are not currently available for this property. Whether youre looking to expand your agricultural holdings, secure a piece of Niagaras countryside for future possibilities, or invest in land with frontage on two roads, this farm parcel presents an excellent opportunity. Buyer to do their own due diligence regarding their future intended use of this property. Dont miss the chance to own a slice of Pelhams beautiful landscape, contact me today for full details. (id:50886)

RE/MAX Niagara Realty Ltd

For sale
$1,499,000
9 LITTLE BEAVER BOULEVARD, Seguin, Ontario

9 Little Beaver Boulevard

Seguin, Ontario

An unparalleled investment opportunity awaits with this remarkable 5.3-acre waterfront retreat on the Boyne River. This property boasts a spectacular approx. 4,000+ SF handcrafted log lodge, complemented by 6 charming guest cabins and is home to a highly successful, year-round fine dining & lodging operation established for over 35 years. The main lodge is a true architectural showpiece, featuring soaring vaulted ceilings with exposed beams, a grand stone fireplace, expansive windows framing breathtaking waterfront & forest views, a state-of-the-art commercial kitchen, a custom wine room, radiant heated floors, a spacious bar, & elegantly appointed dining areas all exuding warmth & ambiance. Private guest cabins offer one-bedroom suites with two queen beds or king bed configurations, 4-piece baths with Jacuzzis, new fireplaces, upgraded natural gas heating & new hot water tanks. Nestled along the tranquil shoreline, The Log Cabin Inn provide guests with a serene, comfortable retreat. Ample parking accommodates both restaurant patrons overnight guests. This property is not only a beloved destination for fine dining & accommodations, but also a sought-after venue for weddings, conferences & special events. The sale includes an extensive list of equipment, software & chattels making it a true turnkey opportunity. The owner is willing to provide training to ensure a smooth transition and continued success. With exceptional reviews (4.7 on TripAdvisor, 9.6 on Hotels.com) an established reputation, the business is primed for ongoing profitability. The expansive commercial zoning, prime location minutes from downtown Parry Sound, major highways, proximity to the OFSC snowmobile trail, Georgian Bay, Oastler Lake Provincial Park offer exciting possibilities for expansion & diversified uses. Located just 2.5 hours from the GTA, this unique property combines significant real estate value, proven income & growth potential in one outstanding package. (id:50886)

Engel & Volkers Parry Sound

For sale
$379,000
515 VANCES SIDE ROAD N, Ottawa, Ontario

515 Vances Side Road N

Ottawa, Ontario

Unlock the door to your custom-built dream home on this magnificent 6.44-acre building lot, perfectly situated for both convenience and tranquility.Imagine the freedom of country-sized living without sacrificing the amenities you love. This exceptional parcel is located just a 10-minute drive from the thriving tech hub and vast shopping centers of Kanata, putting you within easy reach of everything you need.For the nature lover, the property also boasts the allure of being near water, offering potential for serene views and recreational opportunities.Don't settle for a tiny urban lot seize this rare chance to design and build your estate in an idyllic location that delivers the best of both worlds: peaceful acreage with unparalleled proximity to the city. Your private oasis awaits! (id:50886)

Details Realty Inc.

For sale
$579,900
314 CAPE CHIN ROAD N, Northern Bruce Peninsula, Ontario

314 Cape Chin Road N

Northern Bruce Peninsula, Ontario

This beautiful, must-have property has everything you could want and more! The four large, comfortable bedrooms are also perfect for a family to live in or for hosting guests. Two of these bedrooms have the included ease of beautiful ensuite bathrooms! The primary bedroom features a very large walk-in closet, giving you plenty of storage space. There is also a beautiful 4-piece bathroom on the main floor with a jacuzzi tub! Relax and spend time with family in the beautiful living room, sectioned off into its own cozy utopia! The dining room is perfectly set between the kitchen and the living room, allowing for an easy transition as you're making your way through the home. For an additional heat source, there is a heat pump in the main floor primary bedroom. In the kitchen, you'll conveniently find a walk in panty. Entertain yourself and your guests in the basement rec room! The basement is also equipped with its own half-bathroom for added convenience, one of the private bedrooms, and space for storage! The house has a reverse osmosis water filtration system. Outside, on the 1.5 acres of stunning rural land, complete with many perennials and a raspberry patch, you'll find three additional structures: a store with income potential, a barn that is perfect for hobby farming, and an additional external building! The house used to have a hot tub, and all the previous wiring and breakers are still available. There is also an electric vehicle charger on the property. This beautiful property in Northern Bruce Peninsula has been running as a microfarm, including a beautiful storefront with tons of potential! It has also previously been run as a bed & breakfast! (id:50886)

4 Bedroom 4 Bathroom 2,000 - 2,500 ft2

Royal LePage Royal City Realty

For rent
$3,700 Monthly
5 MAYFLOWER Gardens, Adjala-Tosorontio, Ontario

5 Mayflower Gardens

Adjala-Tosorontio, Ontario

Located in the new community of Colgan, surrounded by gorgeous newly built homes, this stunning 2023-built property offers 3,423 sq. ft. of beautifully upgraded living space designed for modern family living. Featuring an attractive 3-car tandem garage, this home combines functionality, luxury, and style in every detail. The main floor showcases a private office with French doors, a formal dining room with a butler’s pantry, and a large, elegant kitchen with a walk-in pantry — perfect for cooking and entertaining. The open-concept living room, centered around a cozy fireplace, is filled with natural light, while high ceilings enhance the sense of space and brightness throughout. Upstairs, you’ll find 4 spacious bedrooms and 4 bathrooms with modern finishes and generous layouts. The primary suite offers two walk-in closets and a luxurious 5-piece ensuite. The second bedroom includes its own private ensuite, while the remaining two bedrooms share a stylish Jack and Jill bathroom. With over $80,000 in upgrades, including hardwood floors, premium appliances (microwave + beverage fridge), window coverings, garage door openers, and a water softener, every inch of this home reflects thoughtful design and craftsmanship. Blending elegance and practicality, this home offers unmatched comfort and modern sophistication in the sought-after Colgan Crossing community — the perfect place to call home. (id:50886)

4 Bedroom 4 Bathroom 3,423 ft2

Exp Realty Of Canada Inc

For sale
$75,000
0 MACDUFF ROAD ACRES E, Highlands East, Ontario

0 Macduff Road Acres E

Highlands East, Ontario

THe drive way is in, survey at office, property is marked with yellow ribon well treed, some wetland in front (id:50886)

Donna Mae Graham

For sale
$120,000
PART 28 MAPLE DRIVE, Northern Bruce Peninsula, Ontario

Part 28 Maple Drive

Northern Bruce Peninsula, Ontario

Well treed vacant building lot on Maple Drive in Miller Lake! Property is located just a short distance to good public access to Miller Lake just around the corner. The building lot measures 100 feet wide by 150 feet deep. Property is located on a year round paved municipal road, with rural services available such as garbage and recycling pick up. This property is ideal for a year round home or four season cottage. Located in an area of nice homes and cottages. Property is centrally located between Tobermory and Lion's Head and also approximately a ten minute drive to the government dock in Dyer's Bay. Property taxes are $193.00 for 2025. For more information such as building and septic permit, feel free to reach out to the Municipality of Northern Bruce Peninsula at 519-793-3522 ext 226 and reference roll number 410966000100639. (id:50886)

RE/MAX Grey Bruce Realty Inc.

For sale
$1,895,000
116826 GREY ROAD 3, Chatsworth, Ontario

116826 Grey Road 3

Chatsworth, Ontario

Set a ways back from the paved road, this farm has it all! 121 acres of pasture, workable farmland, mixed bush, and well-equipped buildings for a variety of farming endeavours. Surrounded by mature trees with views of the horse paddocks from the veranda, the home blends the charm of the original farmhouse: pine floors, solid wood cabinets, and a cozy woodstove with the added space of a bright, modern addition. The farmhouse includes a welcoming kitchen, family room, office or optional bedroom, and a three-piece bath, while the addition features a large, light-filled living room with deck access, a primary bedroom, four-piece bath, laundry room, and attached double garage. Upstairs offers a loft sitting area and second bedroom, and the basement boasts a spacious rec room with built-in bar and pool table. Outbuildings include a 36' x 48' horse stable with four 12' x 12' box stalls, heated tack room with plumbing, a 43' x 50' bank cattle barn with concrete barnyard and separate well, a 26'6" x 46'6" driveshed, and a 40' x 56'6" coverall building. (id:50886)

2 Bathroom 121 Acres

Exp Realty

For rent
$16.50 Monthly
103 - 450 SPEEDVALE AVE W AVENUE, Guelph, Ontario

103 - 450 Speedvale Ave W Avenue

Guelph, Ontario

. (id:50886)

3,000 ft2

Trilliumwest Real Estate Brokerage

For sale
$120,000
127 MAPLE DRIVE, Northern Bruce Peninsula, Ontario

127 Maple Drive

Northern Bruce Peninsula, Ontario

Nicely treed vacant building lot - located a short distance to good public access to Miller Lake. Lot size is 106.56 feet wide by150 feet deep. Situated on a year round paved municipal road, with rural services available such as garbage and recycling pick up, this property would be ideal for a year round home or four season cottage. Centrally located between Tobermory and Lion's Head and is also approximately a ten minute drive to the government dock in Dyer's Bay. Property taxes are $193.00 for 2025. For more information, feel free to reach out to the Municipality of Northern Bruce Peninsula at 519-793-3522 ext 226 and reference roll number 410966000106948. (id:50886)

RE/MAX Grey Bruce Realty Inc.

For rent
$9 Monthly
201 - 450 SPEEDVALE AVE W AVENUE, Guelph, Ontario

201 - 450 Speedvale Ave W Avenue

Guelph, Ontario

. (id:50886)

3,000 ft2

Trilliumwest Real Estate Brokerage

For sale
$299,900
E/S FIRELANE 3 ROAD, Port Colborne, Ontario

E/s Firelane 3 Road

Port Colborne, Ontario

Treed, vacant lot with water views and potential for severance into 2 lots! A rare opportunity to build your dream home in a quiet, treed lakeside neighbourhood at Pinecrest Point. This half-acre lot is surrounded by tall, mature trees and offers unobstructed views of Lake Erie. Just across the road, you'll find a quiet sand & pebble beach - perfect for sunsets, swimming, or launching a kayak, canoe, or paddle board. The lot comes ready for your plans with completed Archaeological and Hydrogeological Assessments, and all the privacy that old growth trees provide. In addition, there is potential for severance into two parcels, with plans already in place - giving you flexibility for future development or investment. Located on desirable Firelane 3, you'll enjoy peaceful lake living with the convenience of being just 5 minutes to downtown Port Colborne, shops, restaurants, and amenities plus easy access to Hwy 3, 140, and 406. (id:50886)

RE/MAX Niagara Realty Ltd

For sale
$888,000
350 WINEWOOD AVENUE E, Gravenhurst, Ontario

350 Winewood Avenue E

Gravenhurst, Ontario

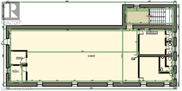
Prime Commercial Opportunity in Muskoka, Land & Building for Sale. The 2,083 sq. ft. building on a 0.4 acre C4 zoned lot is ideally situated in a high-traffic, high-visibility location in the growing Town of Gravenhurst. The building is currently outfitted with a fully equipped quick serve restaurant with seating area for 30 patrons, a large take out counter, ready kitchen with a large preparation area, wash areas, a walk-in freezer, a walk-in refrigerator, a delivery door offering ample parking for customers. Additional amenities include an office, two washrooms, and a full height, clean basement with plenty of storage space. Located across from the bustling Gravenhurst Community Centre, YMCA, and Arena, and close to parks and lake, this property is between the towns major commercial and residential areas. Unlock the potential of this commercial opportunity. (id:50886)

2,100 ft2

RE/MAX Professionals North

For sale
$285,000
262 JOHNSONS HARBOUR ROAD, Northern Bruce Peninsula, Ontario

262 Johnsons Harbour Road

Northern Bruce Peninsula, Ontario

BUILD your modern OFF-GRID DREAM HOME! All the groundwork is done, you just need to add your Pre-fab kit! You could be "home" within months. Building envelope is sandy and ideal to build on. BUILDING PERMIT IS READY & PAID for a HAVN Home (havnhome.com) OR design your own. HAVN Homes are resistant to fire, can withstand extreme weather conditions, low maintenance, longer-lasting, affordable and energy-efficient, therefore perfect for life on the Bruce Peninsula! PLANS FOR THE MS-250 model are included in the sale (not Kit). FOUNDATION & POSTS are laid for a 800 sq ft MAIN FLOOR w/ garage and patio area, and a 1200 sq ft SECOND FLOOR. Main floor PLUMBING in place and inspected. In the meanwhile you can secure your tools in the 10 X 16 SHED with a 32" crawl space, and sleep in the 2001 Dutchman Lite 26QB trailer. Class 4 Septic w/3600L SEPTIC tank already installed (2024). 75ft DRILLED WELL (2024). 16 SOLAR PANELS included. Please see survey in supplements for accurate lot dimensions. (id:50886)

A.g. Robins & Company Ltd

For sale
$249,900
155 BRADLEY DRIVE, Northern Bruce Peninsula, Ontario

155 Bradley Drive

Northern Bruce Peninsula, Ontario

Welcome to 155 Bradley Drive, a breathtaking 72-acre vacant building lot located in the heart of the Bruce Peninsula, just minutes from the charming towns of Tobermory and Lion's Head. This expansive property is perfect for those seeking a private escape in nature, yet close enough to enjoy all the local amenities and attractions. With two gorgeous Lake Huron public beaches just down the road, you'll have easy access to the stunning waters of the region while still enjoying the peaceful seclusion of your own land. The property features a newly installed driveway and a large clearing, making it ready for your dream home or getaway. For the adventurous at heart, rugged trails wind through the property, providing endless opportunities for exploration and outdoor activities right at your doorstep. Whether you're looking to create a year-round residence, a seasonal retreat, or an investment property, this pristine lot offers unlimited potential. Don't miss out on this rare opportunity to own a vast piece of land in one of Ontario's most desirable areas your new adventure awaits at 155 Bradley Drive. **EXTRAS** Hydro available at the lot line, or explore being totally self sufficient with a solar system and no monthly bills! (id:50886)

0 - 699 ft2

Century 21 B.j. Roth Realty Ltd.

For lease
$15 / ft2
7 - 150 DUNKIRK ROAD, St. Catharines, Ontario

7 - 150 Dunkirk Road

St. Catharines, Ontario

Prime 1,909 Sq. Ft. Commercial Space at ActivityPlex St. Catharines High-Visibility Location with Endless Potential Situated along Dunkirk Road with prime exposure to the QEW, this high-traffic commercial space offers a fantastic leasing opportunity for businesses focused on youth activities, fitness, education, training, or recreation. With easy access from both Niagara and Toronto-bound traffic, this location ensures maximum visibility and convenience for clients and staff alike. 1,909 Sq. Ft. of Versatile Space Ideal for a range of uses, from youth programs to fitness and training facilities. High-Exposure Location Directly visible from the QEW, offering prime signage opportunities. Ample On-Site Parking Convenient access for visitors, staff, and clients. Private Entrance Dedicated access for exclusive use. Shared Common Area Access Including a lounge and cafe, creating a welcoming and engaging environment. Perfect for: Youth Sports Training & Coaching, Performing Arts Studios Education & Tutoring Centers Fitness & Wellness Programs Creative & Community Workshops. This premium space is designed to support growth, engagement, and community-focused businesses. Whether you're expanding an existing program or launching a new concept, ActivityPlex provides the visibility, accessibility, and amenities to help your business thrive. Book a Tour Today! (id:50886)

1,909 ft2

RE/MAX Niagara Realty Ltd

For sale
$389,000
PT LT 527 BEECHWOOD AVENUE, Fort Erie, Ontario

Pt Lt 527 Beechwood Avenue

Fort Erie, Ontario

60ft x 120ft corner building lot in a great part of Crystal Beach - within close proximity to Bay Beach; Ridgeway and Crystal Beach's shops, restaurants and amenities - yet in a quiet area on the corner of Rebstock Rd and Beechwood Ave. Build your own dream home or invest for the future - whether it be a single or semidetached - in a nice setting surrounded by newer homes. Positive feedback from the Town of Fort Erie's PreConsultation report for a zoning change to an R3 Semi-Detached home available (id:50886)

0 - 699 ft2

RE/MAX Niagara Realty Ltd

For sale
$104,900
32 HIGH WEST STREET, Sundridge, Ontario

32 High West Street

Sundridge, Ontario

An affordable and ready-to-build opportunity awaits just on the edge of Sundridge, offering the perfect blend of country charm and in-town convenience. This 0.4-acre lot boasts 90 feet of frontage on a year-round municipally maintained road and extends 200 feet deep, with RR (Rural Residential) zoning within the Township of Strong. The groundwork is already complete with a driveway in place, a cleared and excavated building site, a dug well, and hydro available at the road. Imagine living just minutes from Sundridge's welcoming community amenities grocery and hardware stores, charming local dining, and boutique shops and enjoying sunny days at the public beach on beautiful Lake Bernard. With quick access to Highway 11, you're perfectly situated between Huntsville and North Bay. Whether you're ready to break ground now or secure a prime location for the future, this property delivers outstanding value and the perfect place to bring your vision to life. (id:50886)

RE/MAX Professionals North

For sale
$375,000
4027 PERENNIAL WAY, Ottawa, Ontario

4027 Perennial Way

Ottawa, Ontario

This generous half-acre building lot offers the perfect canvas for your custom-designed residence. Whether you envision a modern architectural statement, a cozy country retreat, or a timeless family home, this expansive lot provides the space and flexibility to bring your vision to life. Located in the highly sought-after Quinn Farm community in Greely, you'll enjoy a peaceful, suburban setting with easy access to local amenities, top-rated schools, parks, and recreational facilities offering the perfect balance of tranquility and convenience. (id:50886)

RE/MAX Hallmark Realty Group

For sale
$450,000
210 RIDGEWAY ROAD, Fort Erie, Ontario

210 Ridgeway Road

Fort Erie, Ontario

COMMERICAL INVESTMENT OPPORTUNITY - 130ft x 121ft Commercial property centrally located between Crystal Beach and Ridgeway. Includes a 520 square-foot, one-floor office building with a washroom plus a detached heated garage/shop and lots of parking for tenants, guests and/or clients. The C2 Commercial zoning allows for a variety of uses as a hotel/motel, retail, offices, bake shop, bank, clinic, dry cleaning, restaurant/takeout, laundromat, parking, services, veterinarian clinic, etc. Located close to shopping, parks, and both downtown cores of Crystal Beach and Ridgeway. It's a 15-minute drive to the QEW highway or the Peace Bridge to the USA. The property and buildings are for sale, the business is not for sale. (id:50886)

520 ft2

RE/MAX Niagara Realty Ltd

For sale
$275,000
PART 1 SOUTHGATE RD 26, Southgate, Ontario

Part 1 Southgate Rd 26

Southgate, Ontario

Wilder Lake building lots paved road location on Southgate 26 just steps to the public access point of Wilder Lake. Small community feel with both full time and seasonal residents in the neighbourhood. Walk to Homestead resort for dinner or golf. 2 lots available driveways installed, hydro at the road and Fibre internet available. This lot is 160x312. Just 10 minutes to Durham and 20 minutes to Mount Forest. (id:50886)

Royal LePage Rcr Realty

For sale
$275,000
PART 2 SOUTHGATE RD 26, Southgate, Ontario

Part 2 Southgate Rd 26

Southgate, Ontario

Wilder Lake building lots paved road location on Southgate 26 just steps to the public access point of Wilder Lake. Small community feel with both full time and seasonal residents in the neighbourhood. Walk to Homestead resort for dinner or golf. 2 lots available driveways installed, hydro at the road and Fibre internet available. This lot is 165x376. Just 10 minutes to Durham and 20 minutes to Mount Forest. (id:50886)

Royal LePage Rcr Realty

For sale
$249,000
TBD WEBBER ROAD, Pelham, Ontario

Tbd Webber Road

Pelham, Ontario

Escape to nature with this rare 30-acre parcel of untouched forest, offering endless opportunities for recreation, investment, or a future retreat. Located just steps from a nearby golf course, the property is entirely treed, providing privacy, tranquility, and the beauty of a natural landscape. While there is no direct road frontage, access is available through a municipal road allowance. Whether you dream of creating a private getaway, enjoying outdoor adventures, or securing a unique piece of land in a desirable area, this property delivers exceptional potential. A peaceful setting with space to exploreall within reach of local amenities. (id:50886)

Royal LePage NRC Realty

For sale
$299,900
2360 CONCESSION 9 ROAD, Alfred and Plantagenet, Ontario

2360 Concession 9 Road

Alfred And Plantagenet, Ontario

Discover over 8 acres of prime agricultural land, perfect for farming and outdoor enthusiasts alike. This high and dry parcel has been successfully farmed for the past three years, offering fertile soil and excellent potential for crops or hobby farming. Backing onto a scenic nature trail and snowmobile track, the property combines practicality with recreational appeal. Whether your'e looking to expand your farming operation, start a homestead, or invest in versatile agricultural land, this opportunity is full of potential. (id:50886)

Exp Realty

For sale
$584,000
5455 COLLEGE ROAD, Fort Erie, Ontario

5455 College Road

Fort Erie, Ontario

10 Acres of Tranquility - A Nature Lovers Dream! Discover the perfect blend of seclusion and convenience with this beautiful 10-acre property, ideally located on the outskirts of town. Surrounded by nature and featuring a private access and a serene pond, this unique parcel offers endless possibilities for outdoor recreation, peaceful living, or your future dream home. With plenty of open space to explore, roam, and enjoy, the land is ideal for nature enthusiasts, hobbyists, or those simply seeking a private escape. Natural gas and hydro are already on the property with meters, making future development even more accessible. Whether you're looking to build your forever home, create a private retreat, or invest in a slice of nature, this property offers an incredible opportunity. Enjoy close proximity to shopping, schools, beaches, and highway access, all while being tucked away from the hustle and bustle of city life. A rare offering that combines natural beauty with practical amenities. Don't miss out on this incredible opportunity to turn your vision into reality. (id:50886)

0 - 699 ft2

Boldt Realty Inc.

For sale
$1,750,000
BUILDING LOT SIMCOE STREET, Niagara-on-the-Lake, Ontario

Building Lot Simcoe Street

Niagara-On-The-Lake, Ontario

Groundbreaking opportunity to build the dream home on an estate-sized lot in the heart of Old Town Niagara on the Lake. Steps from Queen Street shops, cafes & restaurants. Overlooking the Golf Course, and views across to the lake. At 112 by 140 feet, this oversized lot features charming brick & iron gates, as well as mature trees. Ready for your custom plans! (id:50886)

Revel Realty Inc.

For sale
$499,000
201 FIRST STREET LOUTH, St. Catharines, Ontario

201 First Street Louth

St. Catharines, Ontario

PRIME BUILDING LOT- Turn your dreams into a reality. This building permit ready vacant lot is located in the desirable and highly sought out Grapeview area. Close to all amenities including shopping, schools, hospital, places of worship and so much more. Proximity to the QEW and 406 is an added perk for those looking to commute or hop on the highway with ease. Completed house plans for a bungalow available for usage and house plans for a two storey partially completed and can be provided upon request. (id:50886)

Revel Realty Inc.

For sale
$499,000
61 CRAWFORD DRIVE, South Bruce Peninsula, Ontario

61 Crawford Drive

South Bruce Peninsula, Ontario

Situated on a quiet No Exit year round road, you'll find this beautiful 99 acres of land in Purple Valley! The property consists of some open areas and has an abundance of mixture of hardwood bush. The property used to be the "old homestead" many years ago. There is a driveway, hydro (currently disconnected) and a well (depth unknown) on the property. Ideal location for a year round country home; it could also be a hobby farm - great for horses! Located on the property is also a large open bay shed and part of the old foundation where the home once stood. Property is close to trails, and a short drive to the town of Wiarton, marina, shopping for amenities, groceries, etc. Government Dock is also nearby. The property measures approximately 1300 feet wide by 3315 feet deep. Property is located on a year round municipal road. Rural services are available such as garbage and recycling pick up. The property is zoned DC (Development Control) and is under the jurisdiction of the Niagara Escarpment Commission. For further information regarding building permit, feel free to contact 519-371-1001 Email: nec@ontario.ca. Reference roll number 410259000716300 . Current taxes: $519.00. If you're looking for a large parcel of land to enjoy nature or just to putter around, this one might be the one for you! Please do not enter the property without a Realtor. (id:50886)

RE/MAX Grey Bruce Realty Inc.

For sale
$4,500,000
466408 12TH CONCESSION B, R.R. 4, Grey Highlands, Ontario

466408 12th Concession B, R.r. 4

Grey Highlands, Ontario

If you've been searching for a lakefront lot, search no longer; 92 acres of mixed hardwood, pine forest, and fields. All of this and 1800 feet of lake frontage on Lake Eugenia, one of the most popular inland lakes in Southern Ontario! Build your House/Cottage/Chalet and of course a dock at the lake. All summer you can fish, canoe, kayak, wakeboard, water ski, swim or land your floatplane, taxi up to the dock and grab your first pint of beer to celebrate the beginning of the weekend. During the winter months, you can enjoy the privilege of year round living, being just 10 minutes from Beaver Valley Ski Club and only 30 to Craigleith or Blue Mountain resorts! Ski, snow shoe, Snowmobile, ATV or go for a quiet stroll on the century-old trails in the bush made by the founding farm family. Tap trees in the spring with the kids and make Maple Syrup over your own toasty fire. There is even a century-old post and beam drive shed that you could upgrade to the most amazing summer Theatre/man cave/ entertainment/dining facility. Only 1.5 hours to K/W, Waterloo/Guelph, or Pearson. Seeing is believing with this fine offering... Miss it at your peril. (id:50886)

Royal LePage Royal City Realty

For sale
$2,499,888
8018 CATHEDRAL DRIVE, Niagara Falls, Ontario

8018 Cathedral Drive

Niagara Falls, Ontario

Welcome to 8018 Cathedral Drive, Niagara Falls. Absolutely stunning mansion located it prestigious Mount Carmel. This Custom Built 2 Storey home full of love features 5 bedrooms and 4 bathrooms with 5000 sq ft of finished living space. When you walk into this home you are greeted with amazing soaring ceiling height with designer finishes and soothing natural light. Main floor features huge chefs' kitchen with breakfast island, granite counter tops, gas stove with covered hood range, and tons of counter and cupboard space. The kitchen flows into dining area and living room with gas fireplace, Main floor office, laundry and massive amount of storage in the entry way from the double garage. Upper level is a natural 4-bedroom layout with grand master bedroom & huge ensuite and walk in closet. All the bedrooms are generous in size and light. Lower level is massive ideal for inlaw suite with rec room, family room, 2 additional bedrooms and 3pc bath with an extraordinary amount of storage space. Take advantage of this rare opportunity to reside in Niagara's most sought-after location, when you pull into the driveway, you will know you are home. Call for a private location. Luxury Certified. (id:50886)

6 Bedroom 4 Bathroom 2,500 - 3,000 ft2

RE/MAX Niagara Realty Ltd

For sale
$549,000
TBD MONTROSE ROAD, Niagara Falls, Ontario

Tbd Montrose Road

Niagara Falls, Ontario

Don't miss this rare opportunity to own an estate lot measuring 125 ft by 407 ft. This building lot is ready for your dream home. Imagine living just steps from Fallsview Casino, Niagara Falls, a new hospital, popular restaurants, shopping, a marina, and beautiful walking/biking trails. This prime location also offers easy access to the QEW. Build your dream home. The possibilities are endless come and see this exceptional lot for yourself! (id:50886)

Royal LePage NRC Realty

For sale
$219,900
79 MARTIN STREET, Welland, Ontario

79 Martin Street

Welland, Ontario

Severed building lot with services that are at the road and hydro on the lot .This 35ft x 90ft lot, is zoned RL1 and permits a maximum of four units, providing incredible flexibility for development. This infill lot is located in a rare to find mature and desirable neighborhood in the west side of Welland. The lot allows many uses such as single family home, duplex or semi-detached home with separate living spaces, ideal for multi-generational living or rental income. Additionally, two accessory dwelling units (ADUs) are permitted, requirements must comply with Section 6 of the zoning bylaws. Located near schools, parks, and amenities, it offers convenient access to major roads and public transit, making it an ideal choice for homeowners, investors, or developers. Buyers to do their own due diligence. Dont hesitate and start building your dream home or investment property. (id:50886)

RE/MAX Garden City Realty Inc

Contact Us
Your Favourites

 

No Favourites Found