Unit 1 - 201 Woodside Drive Orillia, Ontario L3V 6T4
$30 / ft2
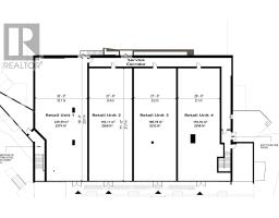
Brand new retail lease opportunity in a high-demand Orillia location at the intersection of Westmount Drive North and Coldwater Road West. Four units are being developed from an existing structure with entirely new infrastructure throughout, offering modern, flexible commercial space. The site is adjacent to a very busy Tim Hortons drive-thru and directly faces the storefront of a high-traffic Shoppers Drug Mart, ensuring excellent visibility and constant exposure to pedestrian and vehicle traffic. Zoned C4, the property allows for a wide range of permitted uses including medical center, pharmacy, dental office, physiotherapy clinic, bakery, daycare, fitness studio, restaurant, retail store, and professional office. Units range from 2,500 to 10,000 sq. ft. with the option to combine spaces for larger requirements. This is a prime opportunity to establish your business in one of Orillia's most visible and active commercial corridors. additional detail attached to the listing. (id:50886)
Property Details
| MLS® Number | S12525718 |
| Property Type | Retail |
| Community Name | Orillia |
| Features | Irregular Lot Size |
Building
| Cooling Type | Fully Air Conditioned |
| Heating Fuel | Natural Gas |
| Heating Type | Forced Air |
| Size Interior | 2,579 Ft2 |
| Utility Water | Municipal Water |
Land
| Acreage | No |
| Size Irregular | Unit=229 X 952 Acre |
| Size Total Text | Unit=229 X 952 Acre |
| Zoning Description | C4 |
https://www.realtor.ca/real-estate/29084399/unit-1-201-woodside-drive-orillia-orillia
Contact Us
Contact us for more information
Shailesh Patel
Broker
shaileshpatel.ca/
www.facebook.com/profile.php?id=100013432660655
www.linkedin.com/in/shailesh-patel-77965842/
836 Dundas St West
Toronto, Ontario M6J 1V5
(416) 530-1080
(416) 530-4733
www.RemaxUltimate.com









