Unit 6 - 175 Beverly Street Cambridge, Ontario N1R 7Y9
$15 / ft2
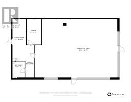
Cambridge Commercial - Unit 6 is a corner unit of approximately 2,020 SF and would be ideal for office or retail space. The plaza at 175 Beverly St has been completely revitalized and renovated. Plenty of parking for each unit. CS-5 service commercial zoning allows for a variety of permitted uses. The plaza is located at the busy intersection of Dundas St N andBeverly St. Additional rent is estimated at $7.73 PSF. NO food, grocery or restaurant uses, places of assembly, cannabis, vape shops. Landlord is looking for a Tenant with a good covenant and proven track record. (id:50886)
Business
| Business Type | Retail and Wholesale |
| Business Sub Type | Retail misc. |
Property Details
| MLS® Number | X12406645 |
| Property Type | Retail |
Building
| Cooling Type | Fully Air Conditioned |
| Heating Fuel | Natural Gas |
| Heating Type | Forced Air |
| Size Exterior | 2020 Sqft |
| Size Interior | 2,020 Ft2 |
| Utility Water | Municipal Water |
Land
| Acreage | No |
| Zoning Description | Cs5 |
https://www.realtor.ca/real-estate/28869040/unit-6-175-beverly-street-cambridge
Contact Us
Contact us for more information
Aaron Wright
Salesperson
(877) 272-4040
387 George Street South P.o. Box 178
Peterborough, Ontario K9J 6Y8
(705) 743-4444
(705) 743-9606
www.goldpost.com/























